Vente Appartement 38240, MEYLAN france 245 000 €
Descriptif du bien
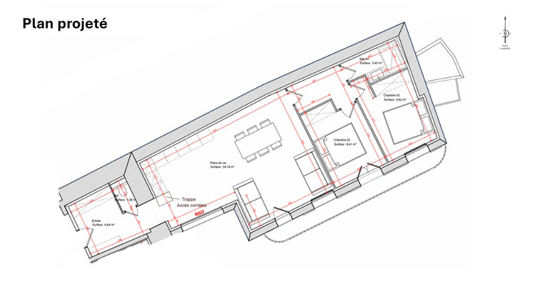
Gaya Immobilier vous propose, en exclusivité, dans un secteur résidentiel calme et recherché, un appartement au RDC d'une copropriété de 5 logements avec jardin partagé d'environ 600 m2. A moins de 100 mètres des écoles, de la bibliothèque, des commerces et des transports, cet appartement, d'une surface de 74 m², bénéfice d'une belle luminosité et d'un balcon exposé sud-est longeant la quasi-totalité du bien et donnant sur le jardin. Le bien, à rénover, se compose actuellement d'un séjour lumineux avec cheminée, d'une cuisine indépendante, d'une salle de bains, d'un WC et d'une chambre. Il est vendu avec l'ensemble des plans d'architecte, études techniques et devis détaillés des travaux. Vous aurez donc une possibilité unique de créer un appartement de type T2ou T3 parfaitement ajusté à vos goûts et à votre budget. Le bien est complété d'une place de stationnement et d'un garage à vélos commun. Possibilité d'acquérir, en supplément, une cave et/ou un grand garage de plus de 20 m2. Copropriété de 5 lots, en cours de rénovation totale (travaux et élaboration d'un nouvel état descriptif de division et d'un nouveau règlement de copropriété). Les informations sur les risques auxquels ce bien est exposé sont disponibles sur le site Géorisques : www.georisques.gouv.fr Prix de vente : 245 000 euros Honoraires charge vendeur N'hésitez pas à prendre contact avec l'agence Gaya pour une première visite. Référence annonce : 5163D Copropriété de 7 lots - dont 5 lots habitation.
- Type de bien : Appartement
- DPE : G -> 450 kWh/².an
- GES : F - 56 à 80 kg eq CO2/².an
- Surface : 74 m²
- Localisation : France - Auvergne-Rhône-Alpes - Isère
- Ville : MEYLAN
- Code postal : 38240
- Disponible le 02/02/2026
- Annonce créée le 10/02/2026




