Vente Appartement 33700, Mérignac france 349 000 €
Descriptif du bien
GRAND T3 ET SA TERRASSE A DEUX PAS DU TRAM
Nichée au coeur d'un quartier résidentiel paisible et très recherché, cette résidence offre un équilibre parfait entre calme et vie urbaine.
Située à Mérignac, dans le secteur prisé d'Arlac, elle bénéficie d'un emplacement stratégique. À moins de 5 minutes à pied, vous accédez à la ligne A du tramway, facilitant vos déplacements vers le centre-ville de Mérignac, le quartier Saint-Augustin de Bordeaux, l'aéroport ou encore les principaux axes routiers (rocade, A63).
Le quartier séduit par sa qualité de vie : écoles, crèches, commerces de proximité, centre commercial, espaces verts et pistes cyclables sont accessibles en quelques pas, offrant un cadre idéal pour les familles comme pour les actifs.
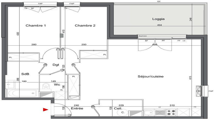
Ce grand T3 de 72 m² séduit par ses volumes généreux et son agencement fonctionnel. La pièce de vie de34 m² et sa cuisine aménagée, baignée de lumière, s'ouvre sur une terrasse de 12 m², parfaite pour recevoir ou profiter des beaux jours. Dès l'entrée, un placard et un cellier apportent un vrai confort de rangement.
L'espace nuit se compose de deux chambres avec rangements intégrés, d'une spacieuse salle de bain moderne avec meuble vasque, faïences posées toute hauteur, et d'un WC indépendant.
Un second cellier privatif au rez-de-chaussée complète les prestations de cet appartement, offrant un espace de stockage pratique au quotidien. Une place de parking vient également compléter ce bien, à la fois idéalement situé et parfaitement configuré.
- Aucun travaux à prévoir
- Frais de Notaires Réduits
- Garanties
- RT 2012
- ...
GRAND T3 ET SA TERRASSE A DEUX PAS DU TRAM
Honoraires à la charge du vendeur. Dans une copropriété de 31 lots. Aucune procédure n'est en cours. DPE en cours. Les informations sur les risques auxquels ce bien est exposé sont disponibles sur le site Géorisques : georisques.gouv.fr.
Votre conseiller RH Patrimoine : Marc VEYRET
Agent commercial (Entreprise individuelle)
- Type de bien : Appartement
- Surface : 72 m²
- Localisation : France - Nouvelle-Aquitaine - Gironde
- Ville : Mérignac
- Code postal : 33700
- Annonce mise à jour le 28/11/2025


