Vente Appartement 33700, Mérignac france 345 000 €
Descriptif du bien
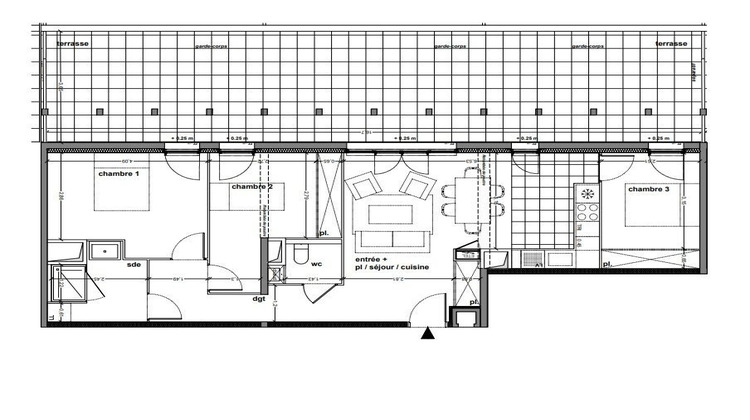
OPPORTUNITE RARE : TERRASSE DE 60m2 EXPOSEE SUD A DEUX PAS DU TRAM
À Mérignac, au sein d'une résidence moderne entourée de verdure, découvrez ce bel appartement T4 de 78 m² aux volumes optimisés et baignés de lumière naturelle. Implantée dans un cadre paysager soigneusement aménagé, la résidence offre un environnement de qualité, à deux pas des commerces, des écoles et des transports en commun (tram A et lignes de bus), garantissant un quotidien pratique et agréable.
Son atout majeur : une immense terrasse de plus de 60 m² exposée plein sud, véritable espace de vie à ciel ouvert, idéal pour les repas en plein air, les moments de détente ou l'aménagement d'un jardin suspendu. Accessible depuis le séjour et toutes les chambres, cette terrasse prolonge harmonieusement l'espace intérieur et invite à profiter pleinement de chaque saison.
L'intérieur se compose d'une pièce de vie spacieuse et lumineuse de près de 30 m² avec cuisine ouverte, parfaite pour partager des instants conviviaux.
Côté nuit, trois chambres confortable et intimiste. Une salle d'eau moderne, un WC indépendant et de nombreux rangements viennent compléter l'ensemble.
Une opportunité rare, où chaque mètre carré est pensé pour conjuguer style de vie, confort et liberté en extérieur.
Deux places de parking sécurisées complètent ce bien en sus obligatoire (15 000).
- Aucun travaux à prévoir
- Ascenseur
- Frais de Notaires Réduits
- Garanties
- RT 2012
- Disponible
- ...
OPPORTUNITE RARE : TERRASSE DE 60m2 EXPOSEE SUD A DEUX PAS DU TRAM
Honoraires à la charge du vendeur. Dans une copropriété de 25 lots. Aucune procédure n'est en cours. DPE en cours. Les informations sur les risques auxquels ce bien est exposé sont disponibles sur le site Géorisques : georisques.gouv.fr.
Votre conseiller RH Patrimoine : Maxime HERVE
Agent commercial (Entreprise individuelle)
RSAC 133095555 J
RCP 13309666 J
- Type de bien : Appartement
- Surface : 78 m²
- Localisation : France - Nouvelle-Aquitaine - Gironde
- Ville : Mérignac
- Code postal : 33700
- Annonce mise à jour le 27/06/2025


