Vente Appartement 33700, Mérignac france 580 000 €
Descriptif du bien
PRESTATIONS - CONFORT - VOLUMES - EMPLACEMENT
À quelques minutes de Bordeaux, cette résidence à taille humaine avec ascenseur profite d'une excellente desserte grâce au tramway A et aux grands axes routiers, facilitant ainsi les déplacements quotidiens. À proximité immédiate, commerces, restaurants et services essentiels offrent un confort de vie appréciable, tandis que les établissements scolaires et infrastructures sportives en font un secteur recherché par les familles. Mérignac séduit également par ses nombreux espaces verts, tels que le Parc de Bourran, propice aux promenades et aux activités de plein air. L'aéroport, accessible en quelques minutes, constitue un atout supplémentaire pour les voyageurs fréquents. Alliant accessibilité, sérénité et qualité de vie, cet emplacement constitue un cadre parfait pour profiter pleinement du confort de cet appartement d'exception.
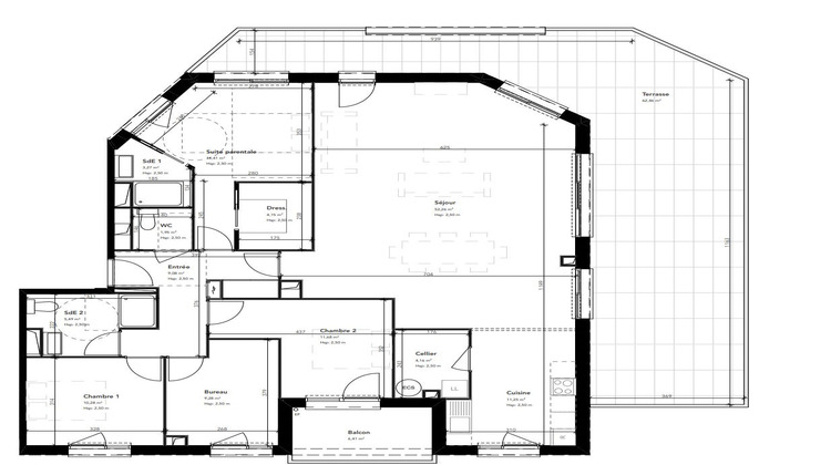
Cet appartement T5 situé au dernier étage (Attique) offre un cadre de vie exceptionnel grâce à sa configuration et ses espaces extérieurs. Avec une surface habitable de 110 m², il se compose d'une belle pièce de vie de 40 m², prolongée par une immense terrasse de 98 m² qui ceinture l'appartement. La cuisine ouverte sur le séjour offre un espace convivial et lumineux.L'appartement dispose d'une chambre parentale de 14 m² avec sa salle d'eau privative, ainsi que de trois autres chambres confortables (dont deux d'environ 12 m² et une de 10 m²). L'espace nuit est complété par une salle de bains avec WC, un WC indépendant et un dégagement fonctionnel. Grâce à son agencement optimisé séparant bien les espaces jour et nuit, cet appartement allie confort et fonctionnalité, offrant un cadre de vie idéal pour une famille en quête d'espace.
Deux parkings en SUS obligatoire complètent le bien (30 000).
- Frais de Notaire réduits
- Garanties
- RT 2012
- Exonération de taxe Foncière
- Ascenseur
- ...
Visuel non contractuel suggestion d'aménagement
PRESTATIONS - CONFORT - VOLUMES - EMPLACEMENT
Honoraires à la charge du vendeur. Dans une copropriété de 31 lots. Aucune procédure n'est en cours. DPE en cours. Les informations sur les risques auxquels ce bien est exposé sont disponibles sur le site Géorisques : georisques.gouv.fr.
Votre conseiller RH Patrimoine : Maxime HERVE
Agent commercial (Entreprise individuelle)
RSAC 133095555 J
RCP 13309666 J
- Type de bien : Appartement
- Surface : 137 m²
- Localisation : France - Nouvelle-Aquitaine - Gironde
- Ville : Mérignac
- Code postal : 33700
- Annonce mise à jour le 20/02/2026



