Vente Appartement 33700, Mérignac france 298 000 €
Descriptif du bien
Sous compromis : VOTRE FUTUR LIEU DE VIE
Cette localisation offre un cadre de vie privilégié, alliant confort urbain et tranquillité résidentielle. Idéalement situé, cet emplacement vous place à proximité immédiate du parc Bourran, de Mérignac Centre, de Mérignac Soleil et des commerces de quartier. De plus, le tramway A au pied de l'immeuble facilite vos déplacements, faisant de cette adresse un choix parfait pour profiter pleinement des atouts de la ville.
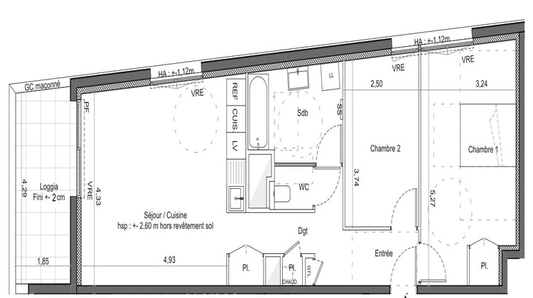
Ce bel appartement est composé d'une entrée avec placards, idéale pour le rangement, de deux chambres confortables, d'une salle de bain fonctionnelle avec emplacement lave linge, et d'une grande pièce de vie lumineuse grâce à son exposition plein sud et ouest. Cet espace de vie s'ouvre sur une agréable terrasse, parfaite pour profiter des beaux jours.
Il bénéficie de prestations modernes et soignées. La résidence propose des matériaux de qualité, des finitions élégantes et des espaces optimisés pour un confort de vie au quotidien. Vous profiterez également d'une isolation thermique et phonique renforcée, conforme aux normes récentes, ainsi que d'espaces communs accueillants.
Un parking couvert et sécurisé complète ce bien en SUS obligatoire (20 000).
- Frais de Notaire réduits
- Garanties
- RE 2020
- ...
Visuel non contractuel suggestion d'aménagement
VOTRE FUTUR LIEU DE VIE
Honoraires à la charge du vendeur. Dans une copropriété de 52 lots. Aucune procédure n'est en cours. DPE en cours. Les informations sur les risques auxquels ce bien est exposé sont disponibles sur le site Géorisques : georisques.gouv.fr.
Votre conseiller RH Patrimoine : Maxime HERVE
Agent commercial (Entreprise individuelle)
RSAC 133095555 J
RCP 13309666 J
- Type de bien : Appartement
- Surface : 68 m²
- Localisation : France - Nouvelle-Aquitaine - Gironde
- Ville : Mérignac
- Code postal : 33700
- Annonce mise à jour le 27/06/2025


