Vente Appartement 06500, MENTON france 632 000 €
Descriptif du bien
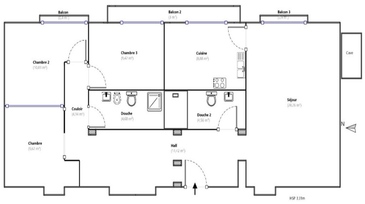
Appartement d'exception au cinquième étage d'un ancien palace Mentonnais. Situé au coeur du centre-ville et à proximité immédiate des jardins Biovès. Sa localisation permet de profiter pleinement de la vie urbaine ainsi que de la mer, des commerces, restaurants, transports et plages. Avec une superficie d'environ 100m², composé comme suit : Une entrée, un vaste séjour, une cuisine indépendante, deux salles d'eau avec toilettes, une chambre, une chambre bureau et de nombreux placards ainsi que deux balcons. Il offre une très belle hauteur sous plafond de 3m30 mettant en valeur son caractère unique et spacieux et un plancher d'origine soigneusement préservé. De par sa position élevée il permet de profiter d'une vue splendide et d'une luminosité incroyable. Cet appartement possède un fort potentiel, alliant des éléments historiques à une vue imprenable. Visites et renseignements au 06.70.91.63.53 Honoraires agence charge vendeur. Appartement soumis au régime de la copropriété (52 lots). Montant charges annuelles : 5130 euros Date réalisation des diagnostics : 16/04/2025 Consommation énergie primaire : D (181 kWh/m²/an) Consommation énergie finale : 172 kWh/m²/an Montant estimé des dépenses annuelles d'énergie pour un usage standard : entre 1400 et 1940 euros par an Prix moyens des énergies indexées sur l'année 2023 (abonnement compris) Les informations sur les risques auxquels ce bien est exposé sont disponibles sur le site Géorisques : www.georisques.gouv.fr Copropriété de 120 lots - dont 52 lots habitation. (Pas de procédure en cours). Charges annuelles : 213 euros.
- Type de bien : Appartement
- DPE : D - 151 à 230 kWh/².an
- GES : D - 21 à 35 kg eq CO2/².an
- Surface : 94 m²
- Localisation : France - provence-alpes-cote-d-azur - Alpes Maritimes
- Ville : MENTON
- Code postal : 06500
- Annonce mise à jour le 24/02/2026









