Vente Appartement 78310, MAUREPAS france 300 000 €
Descriptif du bien
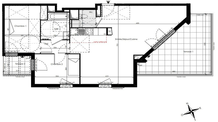
Fiche Id-CAB171041 : Maurepas, T3 3p 73m2 - 24m2 sud - parking double d'environ 73 m2 comprenant 3 piece(s) dont 2 chambre(s) + Terrasse de 24 m2 - Construction 2025 R?sidence - Equipements annexes : jardin - terrasse - garage - parking - digicode - double vitrage - ascenseur - - chauffage : Gaz Collectif Livraison fin 2025 - Classe Energie A : 8 kWh.m2.an - (DPE ancienne version) - Plus d'informations disponibles sur demande... - Mentions légales : Proposé à la vente à 300000 Euros (honoraires à la charge du vendeur) - Classe Energie A : 8 kWh.m2.an - (DPE ancienne version) - Bien en copropriété - Charges annuelles : 2150 Euros/an (soit 179 Euros/mois) - Affaire suivie par Mr Maximilien ZANIER (Agent immobilier - Responsable) - Reseau Immo-Diffusion Bagnolet - Pour plus d'informations, contactez notre secrétariat au 09 74 53 13 81 (Appel gratuit ou prix d'une communication locale)
- Type de bien : Appartement
- Surface : 73 m²
- Localisation : France - ile-de-france - Yvelines
- Ville : MAUREPAS
- Code postal : 78310
- Annonce créée le 12/03/2025



