Vente Appartement 34130, Mauguio france 685 000 €
Descriptif du bien
Iad France - Penelope Stoker (06 50 24 86 27) vous propose : Appartement T4 de standing avec terrasse et places de parking à Mauguio
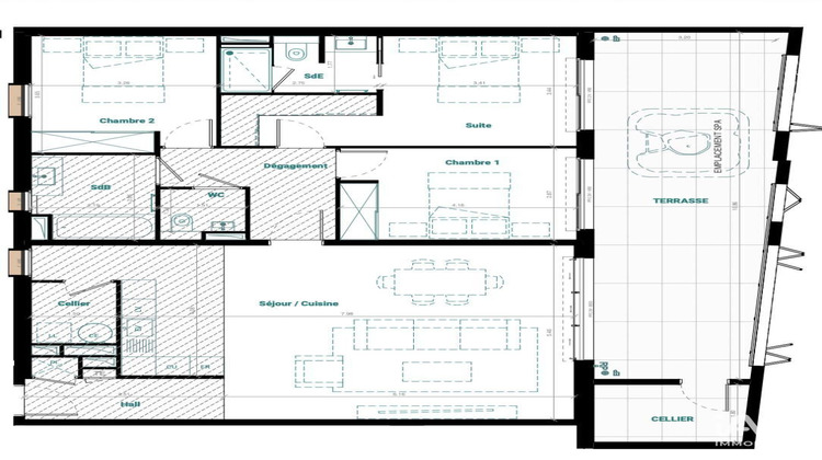
Dans une résidence de standing, découvrez ce bel appartement de 108 m² environ habitables, offrant de beaux volumes.
L'appartement s'ouvre sur une spacieuse pièce de vie de 42 m² environ avec séjour et cuisine ouverte, baignée de lumière et donnant accès à une terrasse, parfaite pour profiter des beaux jours.
L'espace nuit, bien séparé, comprend :
Une suite parentale de 16 m² environ avec salle d'eau,
Deux chambres spacieuses,
Une salle de bain
Un cellier intérieur, ainsi qu'un cellier extérieur sur la terrasse complètent ce bien et offrent des espaces de rangement supplémentaires.
Cet appartement séduit par ses beaux volumes, sa terrasse exposée sud, son agencement et sa résidence contemporaine.
Vendu avec deux places de parking
Pour plus de renseignements merci de me contacter
Honoraires d'agence à la charge du vendeur. Bien non soumis au DPE. Les informations sur les risques auxquels ce bien est exposé sont disponibles sur le site Géorisques : www.georisques.gouv.fr. La présente annonce immobilière a été rédigée sous la responsabilité éditoriale de Mme Penelope Stoker EI (ID 83102), mandataire indépendant en immobilier (sans détention de fonds), agent commercial de la SAS I@D France immatriculé au RSAC de Paris sous le numéro 930194964, titulaire de la carte de démarchage immobilier pour le compte de la société I@D France SAS.
Retrouvez tous nos biens sur notre site internet. www.iadfrance.fr.Informations LOI ALUR : Honoraires charge vendeur. (gedeon_6727_32850572)

