Vente Appartement 13007, MARSEILLE 7 france 501 000 €
1 / 3
Descriptif du bien
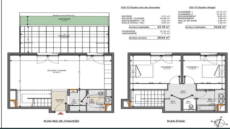
Situation d'exception pour cet appartement au coeur du quartier très prisé d'Endoume et à proximité des principaux axes de la métropole . D'une superficie de 83 m2, ce T3 en duplex comprend une cuisine, un séjour avec accès à une terrasse de 24 m2 agrémentée d'une jardinière de 7 M2 , une salle d'eau et un wc. A l'étage, se trouvent 2 chambres, une s alle de bains et un wc. Programme neuf livrable au premier trimestre 2024;
- Type de bien : Appartement
- Surface : 83 m²
- Localisation : France - provence-alpes-cote-d-azur - Bouche-du-Rhone
- Ville : MARSEILLE 7
- Code postal : 13007
- Annonce créée le 04/12/2023


