Vente Appartement 13012, Marseille france 270 000 €
Descriptif du bien
' Confort entre Bois et Désert '
12ÈME SAINT JEAN DU DÉSERT
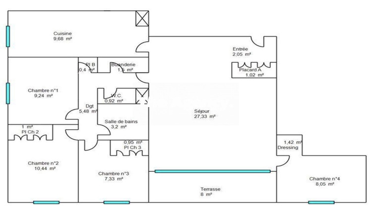
Type 5 de 90m² avec terrasse de 8m² exposée Ouest
Au 3ème et dernier étage
+ Place de parking et garage fermé en sous-sol en SUS
Idéalement situé et à proximité de nombreux commerces et commodités du quotidien, des axes autoroutiers, des transports en commun, des établissements scolaires ainsi que de plusieurs lieux de loisirs.
Au sein d'une copropriété des années 80, calme, verdoyante et très bien entretenue par un concierge.
Celle-ci est également fermée et sécurisée par un portail automatique.
THE AGENCY vous propose en exclusivité ce type 5 de 90.01m² Loi Carrez au 3ème et dernier étage sans ascenseur.
Il se compose de la manière suivante :
Côté jour :
Un hall d'entrée, un salon / séjour avec accès à la terrasse et une cuisine indépendante, meublée et équipée.
Côté nuit :
Une chambre avec son espace dressing, un dégagement avec 3 chambres, une buanderie,
une salle d'eau et un WC indépendant.
Possibilité de recréer un espace de vie plus confortable en reconfigurant l'appartement en type 4.
Possibilité d'acquérir une place de parking simple en sous-sol en SUS,
ainsi qu'un garage fermé de 12,59m² en sous-sol en SUS.
Charges : 179.00 /mois
(Comprend l'entretien de la copropriété, espaces verts, électricité des communs, eau froide,
gardien, assurance copropriété et honoraires syndic)
Charges (Place de parking) : 13.50 /mois
Charges (Garage en sous-sol) : 15.90 /mois
Taxe foncière (le tout) : 1 170.00 /an
' THE AGENCY IMMO, la méthode pour une transaction réussie '
Honoraires inclus de 4.65% TTC à la charge de l'acquéreur. Prix hors honoraires 258 000 . Dans une copropriété de 222 lots. Quote-part moyenne du budget prévisionnel 2 148 /an. Aucune procédure n'est en cours. Classe énergie D, Classe climat D Montant moyen estimé des dépenses annuelles d'énergie pour un usage standard, établi à partir des prix de l'énergie de l'année 2023 : entre 1519.00 et 2055.00 . Les informations sur les risques auxquels ce bien est exposé sont disponibles sur le site Géorisques : georisques.gouv.fr.
Votre conseiller The Agency : Vaïana POLI
Agent commercial (Entreprise individuelle).
' THE AGENCY IMMO, la méthode pour une transaction réussie'
- Type de bien : Appartement
- DPE : D - 151 à 230 kWh/².an
- GES : D - 21 à 35 kg eq CO2/².an
- Surface : 90 m²
- Localisation : France - provence-alpes-cote-d-azur - Bouche-du-Rhone
- Ville : Marseille
- Code postal : 13012
- Annonce mise à jour le 01/05/2026





