Vente Appartement 13009, Marseille france 259 900 €
Descriptif du bien
' Joli Coin '
9ÈME - Sainte Marguerite / Coin Joli
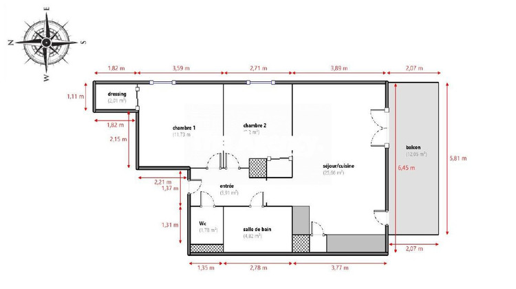
Type 3 de 59,11m² avec terrasse de 12m²
+ Garage simple fermé en sous-sol en SUS
Idéalement situé à proximité des axes autoroutiers, des transports en commun dont le tramway depuis janvier 2026,
écoles, commerces et commodités.
Dans une copropriété récente et sécurisée (2021) aux normes PMR et BBC,
The Agency vous propose en exclusivité un type 3 de 59,11m² Loi Carrez au 1er étage, au calme.
Il se compose de la façon suivante :
Côté jour :
Une entrée, un espace de vie confortable réunissant salon/séjour et cuisine ouverte entièrement
meublée et équipée en perspective d'une terrasse de 12,05m² exposée Sud-Est.
Côté nuit :
Deux chambres avec placards de rangement dont une avec dressing,
une salle de bain avec double vasque et un WC indépendant.
Le bien est équipé d'une climatisation réversible (salon), d'huisseries en PVC double vitrage
et de volet roulant électrique.
Possibilité d'acquérir un garage simple fermé en sous-sol avec prise électrique.
Charges (Apt): 124.00 /mois
(Comprenant eau froide, entretien des parties communes, portail automatique, ascenseur,
assurances copropriété et honoraires syndic)
Charges (Garage): 20.00 /mois
Taxe foncière (Apt + Garage): 1 528.00 /an
' THE AGENCY IMMO, la méthode pour une transaction réussie'
Honoraires inclus de 4.38% TTC à la charge de l'acquéreur. Prix hors honoraires 249 000 . Dans une copropriété de 161 lots. Quote-part moyenne du budget prévisionnel 1 488 /an. Aucune procédure n'est en cours. Classe énergie B, Classe climat B Montant moyen estimé des dépenses annuelles d'énergie pour un usage standard, établi à partir des prix de l'énergie de l'année 2022 : entre 450.00 et 690.00 . Les informations sur les risques auxquels ce bien est exposé sont disponibles sur le site Géorisques : georisques.gouv.fr.
Votre conseiller The Agency : Kenneth MEFFRE
Agent commercial (Entreprise individuelle).
' THE AGENCY IMMO, la méthode pour une transaction réussie'
- Type de bien : Appartement
- DPE : B - 51 à 90 kWh/².an
- GES : B - 6 à 10 kg eq CO2/².an
- Surface : 59 m²
- Localisation : France - provence-alpes-cote-d-azur - Bouche-du-Rhone
- Ville : Marseille
- Code postal : 13009
- Annonce mise à jour le 15/05/2026





