Vente Appartement 13008, Marseille france 239 000 €
Descriptif du bien
' Trieste Venise '
8ÈME - Périer / Roucas Blanc
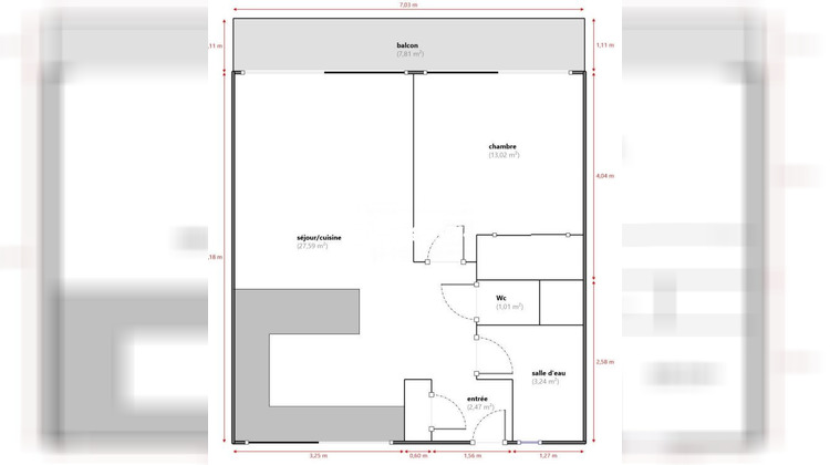
Lumineux type 2 de 47m² avec balcon de 8m² exposé Sud-Est
+ Cave en sous-sol
Idéalement situé à proximité des axes autoroutiers, transports en commun,
établissements scolaires, commerces et commodités du quotidien et hôpitaux.
Sur les hauteurs du boulevard Périer, au sein d'une copropriété intimiste et de bon standing, réalisée par le célèbre architecte Claude Gros (1960).
The Agency vous propose en exclusivité un type 2 de 47.33m² Loi Carrez
au RDC (surélevé) d'un immeuble de 3 étages seulement.
Il est disposé de la façon suivante :
Une entrée avec placard de rangement intégré, un salon / séjour avec cuisine ouverte, meublée et équipée, une chambre avec placard de rangement intégré,
une salle d'eau avec douche style italienne et un WC indépendant.
Un balcon de 8m² accessible par la pièce de vie et la chambre.
Le bien est équipé d'huisseries en PVC double vitrage,
de volets roulants électriques et d'une climatisation réversible .
Charges : 72.00 /mois
Taxe foncière : 1 606.00 /an
' THE AGENCY IMMO, la méthode pour une transaction réussie'
Honoraires à la charge du vendeur. Dans une copropriété de 57 lots. Quote-part moyenne du budget prévisionnel 864 /an. Aucune procédure n'est en cours. Classe énergie C, Classe climat A Montant estimé des dépenses annuelles d'énergie pour un usage standard : entre 560.00 et 820.00 sur les années 2021, 2022 et 2023 (abonnements compris). Les informations sur les risques auxquels ce bien est exposé sont disponibles sur le site Géorisques : georisques.gouv.fr.
Votre conseiller The Agency : Xavier Cloutrier
Agent commercial (Entreprise individuelle)
RSAC 880833728
RCP AR839391.
' THE AGENCY IMMO, la méthode pour une transaction réussie'
- Type de bien : Appartement
- DPE : C - 91 à 150 kWh/².an
- GES : A -< 6 kg eq CO2/².an
- Surface : 47 m²
- Localisation : France - provence-alpes-cote-d-azur - Bouche-du-Rhone
- Ville : Marseille
- Code postal : 13008
- Annonce créée le 06/02/2026





