Vente Appartement 13008, Marseille france 2 290 000 €
Descriptif du bien
Marseille 8e Carré d'Or Vue mer panoramique
Situé au coeur du 8e arrondissement de Marseille, au sein de la prestigieuse résidence 'Les Jardins de Thalassa', cet appartement de type 5 d'exception offre un cadre de vie unique, face à la mer et à la cité phocéenne.
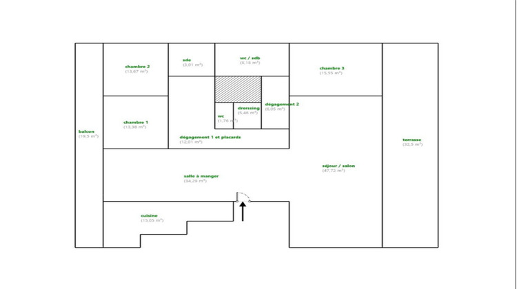
Positionné en étage élevé, il développe une surface de 173,10 m2 (Loi Carrez), agrémentée de 33 m2 de terrasses et 20 m2 de balcon, bénéficiant d'une vue panoramique sur la Mer et la ville.
L'entrée s'ouvre sur une majestueuse pièce à vivre traversante de 85 m2, baignée de lumière, prolongée d'un côté par une terrasse de 32 m2 avec vue dominante sur la mer, et de l'autre côté par un balcon de 20 m2 offrant une vue dégagée sur la ville.
Une cuisine séparée et entièrement équipée bénéficie d'un accès de service indépendant. L'appartement dispose de deux entrées privatives et d'un ascenseur privatif desservant directement le palier.
L'espace nuit se compose de trois belles chambres :
une suite côté mer avec accès à la terrasse ainsi qu'une salle de bain avec douche et WC,
deux chambres côté ville ouvrant sur le balcon,
une salle d'eau, un second WC séparé avec point d'eau, un dressing indépendant et de nombreux rangements.
La résidence sécurisée 24h/24 avec gardiennage permanent offre un environnement exclusif et recherché, avec parkings collectifs, piscine, deux courts de tennis et un Club House.
Considérée comme l'une des résidences les plus prestigieuses du Carré d'Or, elle offre un cadre de vie rare, alliant calme, sécurité et standing.
Pour tout renseignement, contactez Sarah Furnion au 07 77 26 00 40 FIDÈS Immobilier 302 Rue Paradis - 13008 Marseille
- Type de bien : Appartement
- DPE : C - 91 à 150 kWh/².an
- GES : D - 21 à 35 kg eq CO2/².an
- Surface : 173 m²
- Localisation : France - provence-alpes-cote-d-azur - Bouche-du-Rhone
- Ville : Marseille
- Code postal : 13008
- Annonce créée le 12/11/2025





