Vente Appartement 13008, Marseille france 478 000 €
Descriptif du bien
PRADO, PERIER, traversant, vue dégagé sur la Bonne mère et au clame,
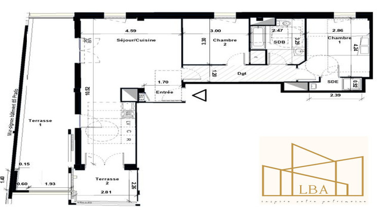
En vente : découvrez à Marseille (13008) cet appartement de 3 pièces de 75 m².
Il donne sur les hauteur du Prado et sa vue direct, dégagé sur la bonne mère.
Il bénéficie d'une exposition Sud, sud-ouest et Nord Est.
Il est composé comme suit : une entrée donnant sur un séjour qui relis la cuisine pour un espace de 35m² , attenant à sa première terrasse de 28m² et l'autre de 6,65m². Un dégagement donne sur une chambre, une suite parentale avec sa salle d'eau et une salle de bain équipée avec WC . L'appartement est équipé d'un chauffage et refroidissement individuel, par pompe à chaleur réversible gainée.
Cet appartement se situe au 7e étage d'un immeuble de 2023 avec ascenseur. L'intérieur de
l'appartement est en excellent état.
Pour les véhicules, il est mis en vente avec un parking sous-sol Boxable en suppléments (20 000)
C'est un appartement en copropriété.
Découvrez toutes les originalités de cet appartement à
vendre en prenant rendez-vous avec l'un de nos conseillers.
Dans une copropriété. Aucune procédure n'est en cours.
Honoraires à la charge du vendeur. Dans une copropriété de 75 lots. Aucune procédure n'est en cours. Classe énergie A, Classe climat A Montant moyen estimé des dépenses annuelles d'énergie pour un usage standard, établi à partir des prix de l'énergie de l'année 2023 : entre 1953.00 et 2153.00 . Les informations sur les risques auxquels ce bien est exposé sont disponibles sur le site Géorisques : georisques.gouv.fr.
Votre conseiller Le Beaurepere Agency : Directeur d'agence - Geoffrey Beaurepere
- Type de bien : Appartement
- DPE : A -< 51 kWh/².an
- GES : A -< 6 kg eq CO2/².an
- Surface : 75 m²
- Localisation : France - provence-alpes-cote-d-azur - Bouche-du-Rhone
- Ville : Marseille
- Code postal : 13008
- Annonce mise à jour le 20/03/2026





