Vente Appartement 13005, Marseille france 250 000 €
Descriptif du bien
' Au coeur du Camas '
5ÈME Le Camas
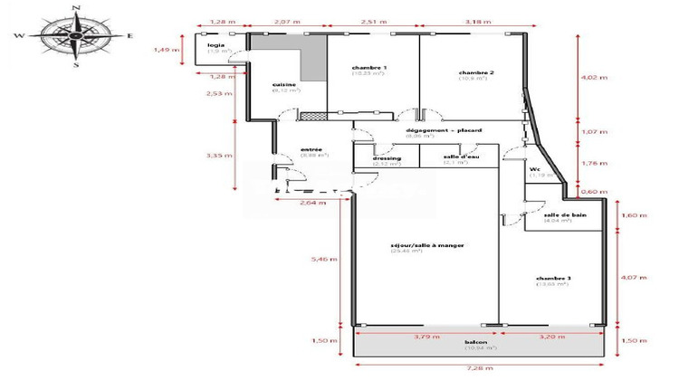
Type 4 de 95m² avec balcon de 11m²
+ Garage simple fermé en sous-sol en SUS
Idéalement situé à proximité des axes autoroutiers, transports en commun, commerces,
commodités du quotidien et établissements scolaires.
The Agency vous propose en exclusivité un type 4 de 94.75m² Loi Carrez au 2ème étage sur 9 avec ascenseur.
Il se compose de la façon suivante :
Côté jour :
Une entrée, un salon / séjour donnant accès à un balcon de 10.94m² exposée Sud,
une cuisine indépendante meublée avec loggia.
Côté nuit :
Un grand couloir, 3 chambres avec placard de rangement, un dressing, une salle de bain, une salle d'eau
et un WC indépendant.
Le bien est équipé d'huisseries en aluminium double vitrage et de volets roulants électriques.
Appartement à rafraichir dans son ensemble.
Possibilité d'acquérir un garage simple de 12.72m² fermé en sous-sol en SUS.
Charges (appartement + cave) : 339.00 /mois
(Comprenant eau froide, eau chaude, chauffage, entretien des parties communes,
portail automatique, ascenseur, assurances copropriété et honoraires syndic)
Charges (garage) : 25.00 / mois
Taxe foncière (le tout) : 2 553.00 /an
'The Agency, la Révolution immobilière...'
Honoraires inclus de 6.84% TTC à la charge de l'acquéreur. Prix hors honoraires 234 000 . Dans une copropriété de 346 lots. Quote-part moyenne du budget prévisionnel 4 068 /an. Aucune procédure n'est en cours. Classe énergie D, Classe climat D Montant estimé des dépenses annuelles d'énergie pour un usage standard : entre 1130.00 et 1570.00 sur les années 2021, 2022 et 2023 (abonnements compris). Les informations sur les risques auxquels ce bien est exposé sont disponibles sur le site Géorisques : georisques.gouv.fr.
Votre conseiller The Agency : Kenneth MEFFRE
Agent commercial (Entreprise individuelle)
- Type de bien : Appartement
- DPE : D - 151 à 230 kWh/².an
- GES : D - 21 à 35 kg eq CO2/².an
- Surface : 94 m²
- Localisation : France - provence-alpes-cote-d-azur - Bouche-du-Rhone
- Ville : Marseille
- Code postal : 13005
- Annonce mise à jour le 16/01/2026





