Vente Appartement 13003, Marseille france 175 000 €
Descriptif du bien
' L'EUROPÉEN '
3ÈME ARD- LA VILLETTE
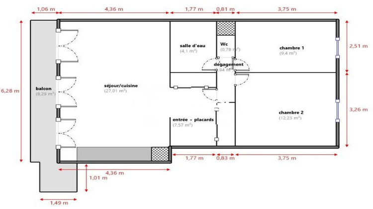
Type 3 traversant de 63m2 avec balcon de 8m²
+ Cave en sous-sol
+ Box simple fermé en sous-sol en SUS
Idéalement situé au coeur du quartier de La Villette, à proximité de nombreux commerces et commodités du quotidien, transports en commun,
établissements scolaires et nombreux loisirs.
Au 7ème étage sur 9 avec ascenseur dans une résidence sécurisée,
The Agency vous propose en exclusivité ce type 3 de 63.03m² Loi Carrez
avec vue dégagée et sans vis-à-vis.
Il se compose de la manière suivante :
Côté jour :
Une entrée avec placards de rangements, une pièce de vie réunissant un salon / séjour
avec une cuisine ouverte, meublée et équipée donnant accès à un balcon de 8.29m².
Côté nuit :
Un dégagement, deux chambres, une salle d'eau et un WC indépendant.
Les huisseries sont toutes en PVC double vitrage et
la climatisation réversible est installée dans la pièce de vie.
Une cave de 4m² en sous-sol complète ce bien.
Possibilité d'acquérir un box simple fermé de 14m² en sous-sol en SUS.
Charges Apt + Cave : 188.24 /mois
(Comprenant eau chaude, eau froide, chauffage au sol, concierge, entretien des parties communes, portail automatique, ascenseur, assurances copropriété
et honoraires syndic)
Charges Box : 20.49 /mois
Taxe foncière : 1 600.00 /an
' THE AGENCY IMMO, la méthode pour une transaction réussie '
Honoraires inclus de 6.71% TTC à la charge de l'acquéreur. Prix hors honoraires 164 000 . Dans une copropriété de 348 lots. Quote-part moyenne du budget prévisionnel 2 259 /an. Aucune procédure n'est en cours. Classe énergie C, Classe climat C Montant moyen estimé des dépenses annuelles d'énergie pour un usage standard, établi à partir des prix de l'énergie de l'année 2023 : entre 880.00 et 1250.00 . Les informations sur les risques auxquels ce bien est exposé sont disponibles sur le site Géorisques : georisques.gouv.fr.
Votre conseiller The Agency : Maxime SANCHIS
Agent commercial (Entreprise individuelle).
' THE AGENCY IMMO, la méthode pour une transaction réussie'
- Type de bien : Appartement
- DPE : C - 91 à 150 kWh/².an
- GES : C - 11 à 20 kg eq CO2/².an
- Surface : 63 m²
- Localisation : France - provence-alpes-cote-d-azur - Bouche-du-Rhone
- Ville : Marseille
- Code postal : 13003
- Annonce mise à jour le 15/05/2026





