Vente Appartement 13001, Marseille france 185 000 €
Descriptif du bien
'NOAILLES ACADEMY'
1ER - NOAILLES
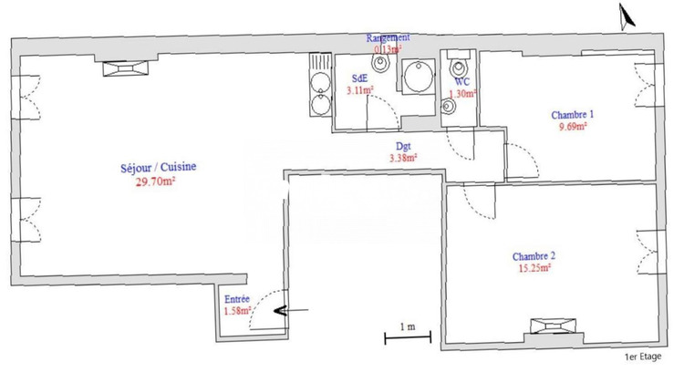
Type 3 traversant de 64m²
Entièrement rénové en 2024
Idéalement situé en hyper centre, à proximité de nombreux commerces et commodités du quotidien, des axes autoroutiers, des transports en commun et des établissements scolaires.
Au 1er étage sans ascenseur d'un immeuble typique Marseillais,
The Agency vous propose en exclusivité un type 3 traversant de 64,01m² Loi Carrez.
Il se compose de la manière suivante :
Une pièce de vie réunissant un salon / séjour et une cuisine ouverte, meublée et équipée,
deux chambres dont une avec placard de rangement, une salle d'eau avec coin buanderie et un WC indépendant.
Le bien est équipé d'une climatisation réversible, d'huisseries en PVC double vitrage, l'électricité est aux normes.
Aucuns travaux à prévoir.
Charges : 61.00 /mois
(comprenant l'eau froide, l'entretien et l'électricité des parties communes,
l'assurance de la copropriété et les honoraires de syndic)
Taxe foncière : 800.00 /an
' THE AGENCY IMMO, la méthode pour une transaction réussie'
Honoraires inclus de 5.71% TTC à la charge de l'acquéreur. Prix hors honoraires 175 000 . Dans une copropriété de 8 lots. Quote-part moyenne du budget prévisionnel 732 /an. Aucune procédure n'est en cours. Classe énergie B, Classe climat A Montant estimé des dépenses annuelles d'énergie pour un usage standard : entre 580.00 et 840.00 sur les années 2021, 2022 et 2023 (abonnements compris). Les informations sur les risques auxquels ce bien est exposé sont disponibles sur le site Géorisques : georisques.gouv.fr.
Votre conseiller The Agency : Meriem CORNET
Agent commercial (Entreprise individuelle).
' THE AGENCY IMMO, la méthode pour une transaction réussie'
- Type de bien : Appartement
- DPE : B - 51 à 90 kWh/².an
- GES : A -< 6 kg eq CO2/².an
- Surface : 64 m²
- Localisation : France - provence-alpes-cote-d-azur - Bouche-du-Rhone
- Ville : Marseille
- Code postal : 13001
- Annonce mise à jour le 03/04/2026





