Vente Appartement 13001, Marseille france 99 000 €
Descriptif du bien
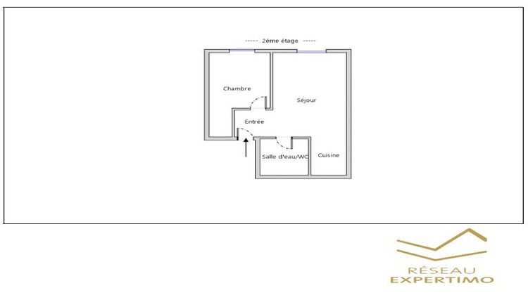
A la vente un appartement de type 2 dans le quartier très vivant et central de la Plaine et à 5 mn à pied des Réformés proche de toutes commodités, d'une superficie de 31,20 m2 env., situé au 2ème étage d'un petit immeuble marseillais de 4 étages, sans ascenseur, exposition Ouest.
Libre de tout occupant. Idéale pour une location saisonnière.
L'appartement comprend : - une entrée + cuisine ouverte sur séjour, - une chambre de 10 m2, - une salle d'eau + WC.
Double vitrage. Chauffage et eau chaude individuel électrique. Disponible immédiatement.
Cette annonce vous est proposée par DJELLOULI Anissa - EI - NoRSAC: 850906694, Enregistré à Chambre de commerce et de l'industrie de MARSEILLE
Les informations sur les risques auxquels ce bien est exposé sont disponibles sur le site Géorisques : www.georisques.gouv.fr - Annonce rédigée et publiée par un Agent Mandataire -
- Type de bien : Appartement
- DPE : C - 91 à 150 kWh/².an
- GES : A -< 6 kg eq CO2/².an
- Surface : 31 m²
- Localisation : France - provence-alpes-cote-d-azur - Bouche-du-Rhone
- Ville : Marseille
- Code postal : 13001
- Annonce créée le 01/10/2025




