Vente Appartement 59700, Marcq-en-Baroeul france 295 000 €
1 / 3
Descriptif du bien
VIVRE A MARCQ-EN-BAROEUL : UN ART DE VIVRE
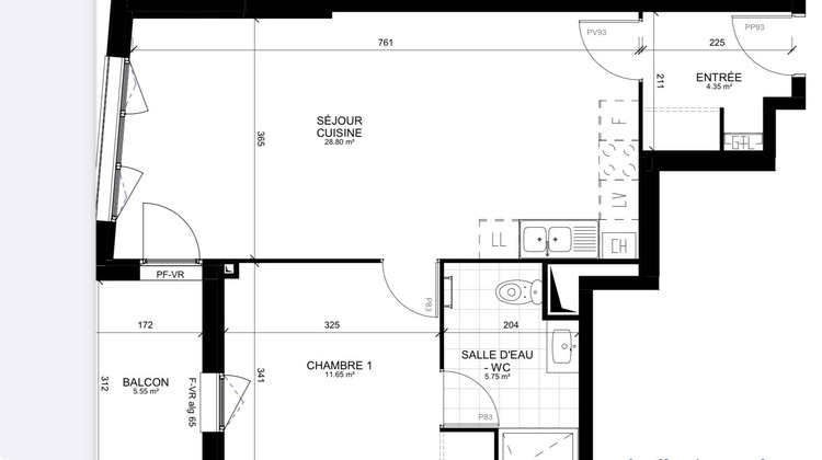
NOUS VOUS PROPOSONS A LA VENTE CE SUPERBE T2 NEUF DE 50,60M2 SIS AU DEUXIÈME ÉTAGE D'UNE RÉSIDENCE DE STANDING.
ENTRÉE, BEAU SÉJOUR AVEC CUISINE ÉQUIPÉE, CHAMBRE AVEC SA SALLE D'EAU EN SUITE.
UN BALCON PARFAITEMENT ORIENTÉ ET UNE PLACE DE PARKING EN SOUS-SOL VIENNENT COMPLÉTER L'ENSEMBLE.
LIVRAISON AVRIL 2026 !
Honoraires inclus de 5.36% TTC à la charge de l'acquéreur. Prix hors honoraires 280 000 . Dans une copropriété de 80 lots. Aucune procédure n'est en cours. Non soumis au DPE. Les informations sur les risques auxquels ce bien est exposé sont disponibles sur le site Géorisques : georisques.gouv.fr.
- Type de bien : Appartement
- Surface : 50 m²
- Localisation : France - Hauts-de-France - Nord
- Ville : Marcq-en-Baroeul
- Code postal : 59700
- Annonce créée le 12/12/2025


