Vente Appartement 69007, LYON 7 france 359 000 €
Descriptif du bien
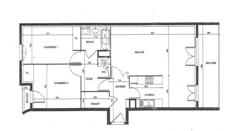
Dans un quartier en pleine évolution du 7ème arrondissement, au 309 rue Garibaldi, dans un immeuble sécurisé le PALAIS PHAROS, construit en 2005 Appartement très lumineux de 3 pièces comprenant : entrée, grand rangement, séjour avec cuisine ouverte donnant sur un grand balcon de 10 m² exposé Sud-Est avec vue sur le jardin de la résidence, 2 chambres dont une avec balcon, salle de bains avec meuble vasque et baignoire, WC séparé Garage fermé au sous-sol sécurisé Chauffage collectif par pompe à chaleur électrique sur nappe phréatique avec répartiteurs individuels et système de climatisation réversible. Envoi dossier sur demande Copropriété de 142 lots, dont 49 lots d'habitation. Agent Commercial à contacter : M. Jean-Pierre LASKAR 06.60.58.27.14 (N° SIREN 904784451) Copropriété de 142 lots - dont 49 lots habitation. (Pas de procédure en cours). Charges annuelles : 2147 euros.
- Type de bien : Appartement
- DPE : D - 151 à 230 kWh/².an
- GES : A -< 6 kg eq CO2/².an
- Surface : 73 m²
- Localisation : France - Auvergne-Rhône-Alpes - Rhône
- Ville : LYON 7
- Code postal : 69007
- Annonce mise à jour le 03/02/2026








