Vente Appartement 69005, Lyon france 232 000 €
Descriptif du bien
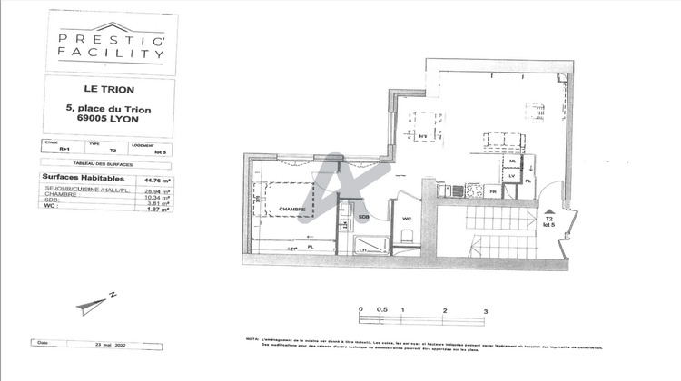
Lyon 5, au coeur de Saint-Just, sur le place Trion, à proximité des commerces, transports, écoles et espaces verts. Venez découvrir cet appartement T2 de 40,80 m2, refait à neuf avec de belles prestations, composé d'une entrée avec placard desservant un séjour avec cuisine, un WC, une salle d'eau, et une chambre. L'appartement se situe au 1er étage sans ascenseur, d'une petite copropriété entièrement rénovée et réhabilitée, avec un jardin commun et potager. L'appartement bénéficie de prestations de qualités : un joli parquet, une cheminée, un sèche serviette et meuble sous vasque, des fenêtres doubles vitrages et des jalousies. Exposé Sud-Ouest, donnant au calme sur le jardin de la copropriété, vous profiterez d'une belle luminosité. Ne manque plus qu'à poser votre propre cuisine. Caractéristique technique : Chauffage électrique individuel. DPE : D ; GES : B. Informations financières : Charges de copropriété : 600 EUR par an - Taxe foncière : 450 EUR. Pas de procédure en cours dans cette copropriété de 5 lots principaux. Pour toute information complémentaire ou pour organiser une visite, contactez Morgane BAROT (EI) - 006.70.72.47.25 - Agent commercial RSAC 911 103 992. Les informations sur les risques auxquels ce bien est exposé sont disponible sur le site Géorisques.
- Type de bien : Appartement
- Surface : 44 m²
- Localisation : France - Auvergne-Rhône-Alpes - Rhône
- Ville : Lyon
- Code postal : 69005
- Annonce mise à jour le 19/11/2025




