Vente Appartement 69003, LYON france 229 000 €
Descriptif du bien
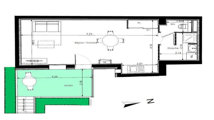
Je vous propose un bien rare sur LYON 69003, en rez-de-jardin, un magnifique studio de 34.36 M² et son jardin. ( livraison immédiate) Il se compose d'un séjour / cuisine de 29.21 M² donnant sur le jardin de 9.11 M², une salle d'eau de 3.63 M², et d'un WC indépendant. Cet appartement se situe dans une résidence intimiste entièrement refaite. Située à l'extrémité du quartier très prisé de Montchat, la résidence est également reliée aux grands axes et à proximité immédiate des transports en commun : - Le Tram T6 (à moins de deux minutes à pied) rejoint le Métro D en deux arrêts. - Le Bus C8 (en face de la résidence) rejoint le Métro D en cinq minutes. - Le Bus C26 (à 650 mètres) traverse le quartier Montchat puis dessert le campus de la Doua et la Cité internationale. - Le Métro D (à 15 minutes à pied) relie l'hypercentre de Lyon en quatre arrêts. Les pôles hospitaliers et universitaires aux environs assurent une très forte demande locative. Si vous cherchez un bien moderne et atypique !!!! Ce bien est pour vous. Pensé pour votre confort, cet appartement offre de vastes espaces, tous orientés pour vous faire bénéficier d'une belle luminosité tout au long de la journée. DPE non requis. Prix de vente: 229.000 euros Mandat 439110 Informations, réservations auprès de votre conseiller commercialisateur Coll Thierry pour ineuf-com au 06 62 37 23 23 ou par courriel à t.coll@proprietes-privees.com agissant sous le statut d'agent en portage salarial auprès de la SAS PROPRIÉTÉS PRIVÉES, Réseau national immobilier, au capital de 40000 euros, 44 ALLÉE DES CINQ CONTINENTS - ZAC LE CHÊNE FERRÉ, 44120 VERTOU, RCS Nantes n° 487 624 777 00040, RCS 487 624 777 - Le professionnel vous conseille, garantit et sécurise votre projet immobilier. Ce bien est soumis au statut de copropriété. Nombre de lots sur l'ensemble de la copropriété : 6 Copropriété de 6 lots - dont 6 lots habitation. Charges annuelles : 600 euros.
- Type de bien : Appartement
- DPE : D - 151 à 230 kWh/².an
- Surface : 34 m²
- Localisation : France - Auvergne-Rhône-Alpes - Rhône
- Ville : LYON
- Code postal : 69003
- Annonce créée le 04/04/2026





