Vente Appartement 69003, Lyon france 530 000 €
Descriptif du bien
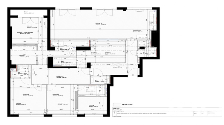
Iad France - Guillaume Gibeaux vous propose : Situé dans un immeuble de standing, sur l'avenue de Saxe, cet appartement va offrir tout le confort moderne attendu dans un tel lieu. 140 m² entièrement rénovés, grande pièce de vie ouverte sur la cuisine, 4 chambres dont minimum 3 avec salle d'eau et 2 avec dressing, 2 W. C. séparés, 1 balcon et une grande cave. Baigné de lumière grâce à ses grandes ouvertures en bois double vitrage, cet appartement en étage élevé assurera à la fois une vie citadine et un sentiment de calme et de sérénité. Situé à proximité immédiate des transports en commun (métro B & D, arrêt Saxe-Gambetta), des bus, des supermarchés, des restaurants, des bars & des commerces de proximité. Immeuble sécurisé avec présence d'une gardienne. Garage à vélos dans la copropriété. Ici, vous avez l'opportunité d'acheter l'appartement dans son état actuel (sans rénovations) et un pack travaux en supplément à 140 000 ¤. Le pack travaux comprend les plans réalisés par l'architecte, les matériaux, les huisseries bois double vitrage, la main-d'OEuvre et le suivi de chantier, réalisé par des professionnels ayant déjà fait leurs preuves. Les plans et les devis ont déjà été réalisés mais peuvent être modifiés, à votre demande. Informations supplémentaires sur simple appel. La presente annonce immobiliere vise 2 lots situés dans une copropriété de 61 lots au total et ne faisant l'objet d'aucune procédure en cours citée à l'article L. 721-1 du code de la construction et de l'habitation. Montant moyen mensuel de charges déclaré par le vendeur : 373.33¤ par mois (soit 4480 ¤ annuel). Honoraires d'agence à la charge du vendeur. Information d'affichage énergétique sur ce bien : classe ENERGIE D indice 237 et classe CLIMAT D indice 43. Les informations sur les risques auxquels ce bien est exposé, y compris l'obligation légale de débroussaillement, sont disponibles sur le site Géorisques : http://www.georisques.gouv.fr.La présente annonce immobilière a été rédigée sous la responsabilité éditoriale de M Guillaume Gibeaux mandataire indépendant en immobilier (sans détention de fonds), agent commercial de la SAS I@D France immatriculé au RSAC de LYON sous le numéro 904153798, titulaire de la carte de démarchage immobilier pour le compte de la société I@D France SAS.Informations LOI ALUR : Soumis au régime de copropriété. Nombre de lots : 61. Quote part annuelle(moyenne) : 4480 euros. Honoraires charge vendeur. (gedeon_6727_32304500)
- Type de bien : Appartement
- DPE : D - 151 à 230 kWh/².an
- GES : D - 21 à 35 kg eq CO2/².an
- Surface : 140 m²
- Localisation : France - Auvergne-Rhône-Alpes - Rhône
- Ville : Lyon
- Code postal : 69003
- Annonce mise à jour le 05/03/2026



