Vente Appartement 69002, Lyon france 740 000 €
Descriptif du bien
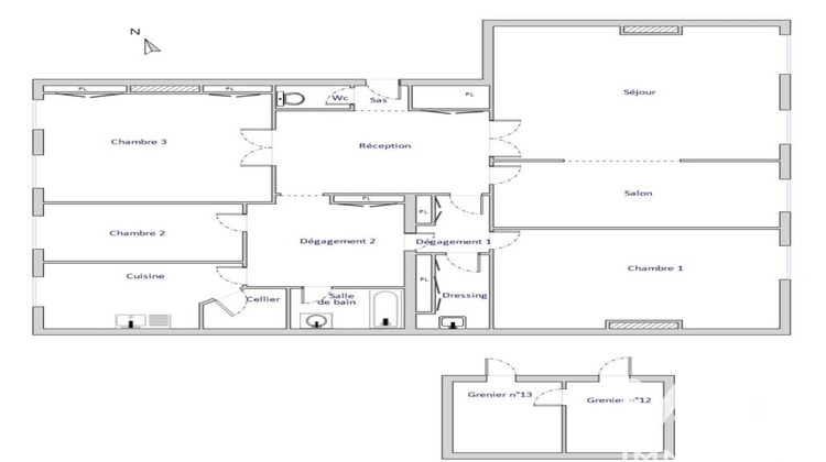
Iad France - Gaël Sergere vous propose : LYON 2 - QUAI DU RHÔNE - APPARTEMENT HAUSSMANNIEN DE 169 m² - VUE DÉGAGÉE
Au cOEur de la Presqu'île, sur le quai du Docteur Gailleton, découvrez ce superbe appartement haussmannien de 169 m², situé au 1er étage avec ascenseur d'un immeuble de caractère datant de 1875.
Un bien rare, offrant des volumes remarquables, une luminosité traversante et une vue dégagée sur le Rhône, dans un environnement à la fois central et privilégié.
--> Des volumes de réception élégants et lumineux
Dès l'entrée, l'appartement séduit par ses proportions généreuses, sa hauteur sous plafond et son charme authentique.
L'espace de vie se compose de plusieurs pièces de réception aux usages variés :
- Un séjour de 33 m², baigné de lumière et ouvert sur les quais avec une vue imprenable sur le Rhône
- Un salon attenant de 16 m², idéal pour un espace de réception complémentaire, un bureau, un salon plus intimiste ou une chambre supplémentaire
- Une pièce centrale de 19 m², véritable pivot de l'appartement, offrant une circulation fluide et élégante
Cet ensemble permet d'imaginer une pièce de vie spectaculaire après réaménagement, ou de conserver une distribution raffinée et distincte des espaces.
Un espace nuit au calme, idéal pour une vie familiale ou un projet haut de gamme
Côté nuit, parfaitement au calme et sans vis-à-vis, l'appartement propose aujourd'hui trois chambres, avec la possibilité d'en créer facilement une quatrième :
- Une chambre principale de 25 m², idéale pour concevoir une suite parentale avec dressing et salle d'eau
- Une seconde chambre de 24 m², aux volumes tout aussi confortables
- Une troisième chambre de 10,5 m², parfaite pour un bureau, une chambre d'enfant ou un espace de télétravail
La configuration traversante et les nombreuses ouvertures offrent une grande liberté d'aménagement, permettant de repenser entièrement les espaces selon vos envies et vos exigences.
Une cuisine indépendante avec cellier, une salle de bain, un dressing et de nombreux rangements complètent l'ensemble.
--> Un appartement de caractère à sublimer
Ce bien nécessite des travaux de rafraîchissement, une opportunité rare de révéler tout son potentiel et de valoriser ses éléments d'origine : volumes, distribution haussmannienne, élégance des proportions.
Un cadre idéal pour un projet de rénovation haut de gamme, dans l'un des secteurs les plus prisés de Lyon.
--> Annexes et prestations
- 2 greniers privatifs
- 2 caves en sous-sol
- Immeuble de standing avec ascenseur
Un emplacement d'exception sur les quais du Rhône
--> Vous bénéficiez ici d'un cadre de vie unique, alliant prestige de l'adresse et praticité du centre-ville :
- Vue directe sur le Rhône et ses berges aménagées
- À 5 minutes à pied de Perrache (gare, métro A, tramways)
- À 8 minutes de Bellecour (métros A et D)
- Accès rapide à la M7
- Commerces, restaurants, écoles et services à proximité immédiate
Un emplacement central et recherché, au cOEur de la Presqu'île lyonnaise.
Un bien rare, destiné aux amateurs de beaux volumes et d'adresses de prestige.
Contactez-moi dès maintenant pour organiser une visite et découvrir tout le potentiel de cet appartement unique sur les quais du Rhône !
La presente annonce immobiliere vise 6 lots situés dans une copropriété de 40 lots au total et ne faisant l'objet d'aucune procédure en cours citée à l'article L. 721-1 du code de la construction et de l'habitation. Montant moyen mensuel de charges déclaré par le vendeur : 193.33¤ par mois (soit 2320 ¤ annuel). Honoraires d'agence à la charge du vendeur.
Information d'affichage énergétique sur ce bien : classe ENERGIE C indice 137 et classe CLIMAT C indice 29. Les informations sur les risques auxquels ce bien est exposé, y compris l'obligation légale de débroussaillement, sont disponibles su...Informations LOI ALUR : Soumis au régime de copropriété. Nombre de lots : 40. Quote part annuelle(moyenne) : 2320 euros. Honoraires charge vendeur. (gedeon_6727_32983958)
- Type de bien : Appartement
- DPE : C - 91 à 150 kWh/².an
- GES : C - 11 à 20 kg eq CO2/².an
- Surface : 169 m²
- Localisation : France - Auvergne-Rhône-Alpes - Rhône
- Ville : Lyon
- Code postal : 69002
- Annonce créée le 16/04/2026





