Vente Appartement 69001, Lyon france 210 000 €
Descriptif du bien
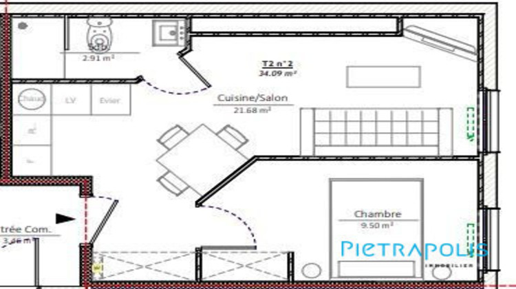
RARE PLATEAU DE 34m2 A RENOVER AU PIED DE LA PLACE DES TERREAUX
Idéalement situé au coeur de Lyon, à seulement 1 minute à pied de la place des Terreaux, ce plateau de 34m² situé au 5e étage avec ascenseur bénéficie d'une belle luminosité!
Proche des commodités, des transports en commun et des écoles supérieures, l'emplacement de ce logement se veut stratégique, garantissant ainsi une tension locative constante de la part des étudiants, professionnels, touristes et jeunes actifs.
Un plan intérieur a étudié mais vous pouvez le modifier selon votre goût ou besoin.
Budget travaux sur demande.
Vous avez là une réelle opportunité de pouvoir créer un cocon.
La localisation privilégiée, proche des commerces, restaurants et services de la vie urbaine en font un lieu recherché pour les citadins en quête de praticité et de dynamisme
Alors venez vite le visiter!
DEUX AUTRES PLATEAUX SONT DISPONIBLES EGALEMENT
1 de 25m2 et l'autre de 28m2 pouvant être transformées en T1 ET T2
Contactez :
Ana Pereira : 06 50 32 59 74
Agent commercial enregistré au R.S.A.C du tribunal de Lyon sous le numéro 843 047 838
Honoraires à la charge du vendeur. Dans une copropriété de 20 lots. Aucune procédure n'est en cours. DPE en cours. Les informations sur les risques auxquels ce bien est exposé sont disponibles sur le site Géorisques : georisques.gouv.fr.
Votre conseiller Pietrapolis Lyon 7 : Ana PEREIRA
Agent commercial (Entreprise individuelle)
RSAC 843 047 838
- Type de bien : Appartement
- Surface : 34 m²
- Localisation : France - Auvergne-Rhône-Alpes - Rhône
- Ville : Lyon
- Code postal : 69001
- Annonce créée le 27/06/2025



