Vente Appartement 33310, Lormont france 199 000 €
Descriptif du bien
DEVENEZ PROPRIÉTAIRE AUX PORTES DE BORDEAUX
À Lormont, au pied du tramway, dans un quartier entièrement réhabilité et en plein renouveau, découvrez cet appartement T3 situé au sein d'une résidence neuve, pensée pour le confort de vie au quotidien. L'emplacement est particulièrement recherché : au pied du tramway, à proximité immédiate des commerces, des écoles et de toutes les commodités, facilitant le quotidien.
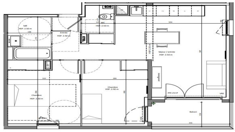
Situé au 4? étage sur 6 d'une résidence récente et sécurisée, cet appartement T3 séduit par sa double exposition Sud-Ouest et Est, offrant une belle luminosité tout au long de la journée.
Il se compose d'une entrée avec placard, d'un séjour avec cuisine équipée ouvrant sur un balcon, idéal pour profiter de l'extérieur. L'espace nuit comprend deux chambres avec placards intégrés, une salle de bains et un WC indépendant.
Ce bien constitue une opportunité idéale pour un premier achat ou un investissement, avec la possibilité de bénéficier, sous conditions, de la TVA réduite et du Prêt à Taux Zéro (PTZ).
Une place de stationnement privative complète ce bien (en sus obligatoire : 12 900 ).
Honoraires à la charge du vendeur. Dans une copropriété de 26 lots. Aucune procédure n'est en cours. DPE en cours. Les informations sur les risques auxquels ce bien est exposé sont disponibles sur le site Géorisques : georisques.gouv.fr.
Votre conseiller RH Patrimoine : Marc VEYRET
Agent commercial (Entreprise individuelle)
- Type de bien : Appartement
- Surface : 64 m²
- Localisation : France - Nouvelle-Aquitaine - Gironde
- Ville : Lormont
- Code postal : 33310
- Annonce créée le 13/02/2026




