Vente Appartement 64140, Lons france 156 000 €
Descriptif du bien
Idéal investisseur Forom® Immobilier
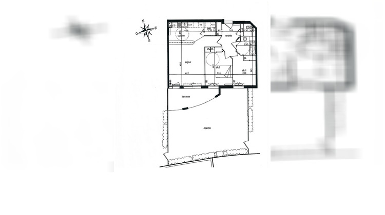
Forom Immobilier vous propose cet appartement T3 d'une surface d'environ 68,40 m² en rez-de-jardin situé dans une résidence sécurisée sur la commune de Lons.
Le logement dispose d'un séjour, une cuisine, deux chambres, une salle de bains, un WC, une terrasse avec un jardin et deux places de parking.
Loyer mensuel : 793,3 / mois soit 676,3 HC + 117 CL
Rentabilité : 6,10% brute
Charges de copropriété : 159,11 / mois
Taxe foncière : 1 074 / an (dont 202 de TEOM remboursée par le locataire)
Date de fin de bail : 02/04/2027
DPE : D
Nombre de lots : 48
Honoraires charge vendeur
La résidence
La résidence se situe dans un secteur résidentiel calme de Lons, à proximité immédiate des commerces, écoles et services du quotidien. Bien desservie par les transports en commun, elle permet un accès facile à Pau et aux principales zones d'activité de l'agglomération. Le quartier offre un cadre de vie agréable, avec des espaces verts à proximité et une bonne accessibilité aux axes routiers principaux.
Honoraires à la charge du vendeur. Dans une copropriété de 48 lots. Aucune procédure n'est en cours. Classe énergie D, Classe climat B Montant moyen estimé des dépenses annuelles d'énergie pour un usage standard, établi à partir des prix de l'énergie de l'année 2026 : entre 1.00 et 1.00 . Les informations sur les risques auxquels ce bien est exposé sont disponibles sur le site Géorisques : georisques.gouv.fr.
- Type de bien : Appartement
- DPE : D - 151 à 230 kWh/².an
- GES : B - 6 à 10 kg eq CO2/².an
- Surface : 68 m²
- Localisation : France - Nouvelle-Aquitaine - Pyrénées-Atlantique
- Ville : Lons
- Code postal : 64140
- Annonce créée le 06/03/2026

