Vente Appartement 14100, Lisieux france 79 200 €
Descriptif du bien
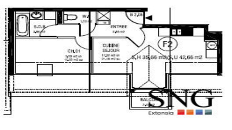
LISIEUX - Dans résidence récente (2007) calme avec gardien, appartement 2 pièces de 35m² comprenant une entrée, une pièce à vivre de 18 m² ouvrant sur un balcon, coin cuisine aménagée et équipée (plaque de cuisson, hotte), chambre, salle de bain et WC indépendant.
Vendu avec place de parking privative.
Digicode, interphone et accès local vélo.
Idéal également pour de l'investissement locatif avec rentabilité brute de 7,5% (loyer HC 500 /mois).
Proximité parcours sportif ; Ligne n°6 LEXOBUS ; 3 km du centre ville ; 4km de la gare ; 2 km de la zone commerciale. Accès direct vers Deauville (A13) et Paris (N13).
Pour tous renseignements contactez le 06x85x06x65x92
Honoraires à la charge du vendeur. Dans une copropriété de 348 lots. Quote-part moyenne du budget prévisionnel 978 /an. Aucune procédure n'est en cours. Classe énergie D, Classe climat A Montant estimé des dépenses annuelles d'énergie pour un usage standard : entre 670.00 et 950.00 sur les années 2021, 2022 et 2023 (abonnements compris). Les informations sur les risques auxquels ce bien est exposé sont disponibles sur le site Géorisques : georisques.gouv.fr.
Carte pro. CPI 1310 2016 000 009 075
AC ADC 1310 2019 000 199 987
Retrouvez l'annonce de l'agence immobilière SNG Extensia sur : https://www.sng-immobilier.com/ref/VA35142

