Vente Appartement 92300, LEVALLOIS-PERRET france 2 050 000 €
Descriptif du bien
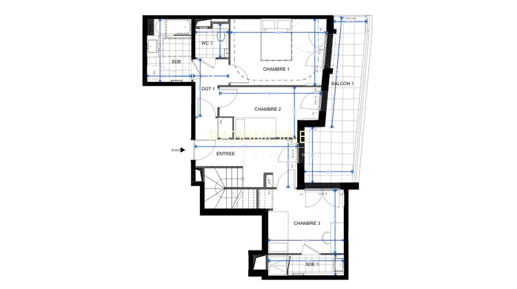
Levallois-Perret Anatole France Dans un immeuble d'excellent standing, appartement 5 pièces de 108m² avec 63m² d'espaces extérieurs (balcons + terrasse) , organisé sur trois niveaux, comme une maison. Le premier niveau comporte une entrée desservant trois chambres dont une avec sa propre salle d'eau et toutes donnant sur un balcon, une salle de bains et un toilette. Le deuxième dessert un séjour de 33m² avec cuisine ouverte, une quatrième chambre avec sa propre salle d'eau aussi, le tout donnant sur un balcon ainsi qu'un second toilette. Le dernier niveau quant à lui offre une grande terrasse de 35m². Deux places de parking au sous-sol complètent ce bien. Prix du bien : 2 050 000 euros
- Type de bien : Appartement
- Surface : 108 m²
- Localisation : France - ile-de-france - Hauts de Seine
- Ville : LEVALLOIS-PERRET
- Code postal : 92300
- Annonce créée le 10/06/2025





