Vente Appartement 93260, Les Lilas france 370 000 €
Descriptif du bien
Iad France - Fatiha El Idrissi vous propose : 41 / 51 AVENUE PASTEUR
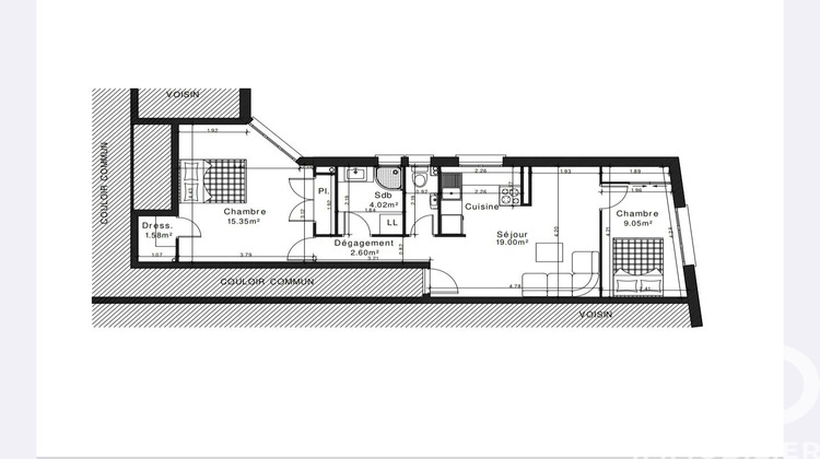
Appartement Lumineux et Cosy - Idéal Investissement locatif ou jeune couple situé dans un quartier dynamique en plein essor à MOINS DE 5MIN A PIED DU METRO PORTE DES LILAS dans une résidence fermée et sécurisée au 1er étage avec ascenseur, bel appartement refait totalement à neuf comprenant : Une cuisine aménagée et équipée ouverte sur un COIN SÉJOUR, deux grandes chambres de 15 et 18 m² environ, une salle d'eau moderne et WC séparés.
Il bénéficie d'une situation géographique stratégique à proximité des transports en commun, des commerces, des écoles et des espaces verts.
CHAUFFAGE et EAU CHAUDE INDIVIDUELS ELECTRIQUE
Une cave
PAS DE PARKING.
Double vitrage.
Taxe foncière : 1550 ¤
Charges : 490¤ trimestre
La presente annonce immobiliere vise 2 lots situés dans une copropriété de 52 lots au total et ne faisant l'objet d'aucune procédure en cours citée à l'article L. 721-1 du code de la construction et de l'habitation. Montant moyen mensuel de charges déclaré par le vendeur : 163.33¤ par mois (soit 1960 ¤ annuel). Honoraires d'agence à la charge du vendeur.
Information d'affichage énergétique sur ce bien : classe ENERGIE D indice 214 et classe CLIMAT B indice 6. Les informations sur les risques auxquels ce bien est exposé, y compris l'obligation légale de débroussaillement, sont disponibles sur le site Géorisques : http://www.georisques.gouv.fr.
La présente annonce immobilière a été rédigée sous la responsabilité éditoriale de Mme Fatiha El Idrissi mandataire indépendant en immobilier (sans détention de fonds), agent commercial de la SAS I@D France immatriculé au RSAC de CRETEIL sous le numéro 410 896 633, titulaire de la carte de démarchage immobilier pour le compte de la société I@D France SAS.Informations LOI ALUR : Soumis au régime de copropriété. Nombre de lots : 52. Quote part annuelle(moyenne) : 1960 euros. Honoraires charge vendeur. (gedeon_6727_32348769)
- Type de bien : Appartement
- DPE : D - 151 à 230 kWh/².an
- GES : B - 6 à 10 kg eq CO2/².an
- Surface : 55 m²
- Localisation : France - ile-de-france - Seine Saint Denis
- Ville : Les Lilas
- Code postal : 93260
- Annonce créée le 16/04/2026





