Vente Appartement 33850, Léognan france 194 000 €
Descriptif du bien
VOTRE NOUVEAU LOGEMENT AU DERNIER ÉTAGE ENTRE VILLE EN NATURE
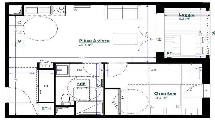
Situé au coeur de Léognan, dans une résidence calme et bien entretenue, ce charmant appartement T2 se trouve au premier et dernier étage d'un petit bâtiment à taille humaine. Idéalement placé, il bénéficie de la proximité immédiate des commerces, services, écoles et transports, tout en offrant un cadre de vie paisible.
Dès l'entrée, vous serez séduit par une agréable pièce de vie baignée de lumière grâce à sa double exposition, offrant une belle sensation d'espace et de clarté. Cet espace s'ouvre sur une terrasse d'environ 7 m², idéale pour profiter des beaux jours, prendre ses repas à l'extérieur ou créer un coin lecture au calme.
L'appartement dispose d'une grande chambre avec placard intégré, offrant un espace nuit confortable et fonctionnel. Une salle d'eau moderne ainsi qu'un WC indépendant complètent l'ensemble.
Pour plus de confort au quotidien, deux places de parking privatives sont vendues avec l'appartement (6 000/place soit 12 000 en sus obligatoire). Ce bien, à la fois pratique et bien situé, conviendra parfaitement à un premier achat, un pied-à-terre ou un investissement locatif de qualité.
VOTRE NOUVEAU LOGEMENT AU DERNIER ÉTAGE ENTRE VILLE EN NATURE
Honoraires à la charge du vendeur. Dans une copropriété de 45 lots. Aucune procédure n'est en cours. Non soumis au DPE. Les informations sur les risques auxquels ce bien est exposé sont disponibles sur le site Géorisques : georisques.gouv.fr.
Votre conseiller RH Patrimoine : Mathieu AUBERT
Agent commercial (Entreprise individuelle)
RSAC 905372389
RCP 133095770 D 001
- Type de bien : Appartement
- Surface : 47 m²
- Localisation : France - Nouvelle-Aquitaine - Gironde
- Ville : Léognan
- Code postal : 33850
- Annonce créée le 25/07/2025


