Vente Appartement 69210, LENTILLY france 360 000 €
Descriptif du bien
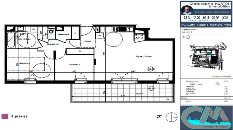
En date du lundi 6 octobre 2025 (date de mise à jour de l'annonce) le bien est disponible ** Caractéristiques principales : ** appartement aux normes PMR T3 - 2 chambres 70,85m² 1er étage avec ascenseur Séjour de 31,85m² ouvrant sur balcon cuisine ouverte sur séjour balcon 2 places de parking en sous-sol Diagnostics de Performance Énergétique : RT 2012, une équivalence RE2020 sera certifié par un bureau d'étude A 700m du centre-bourg, 800m du collège, 400m du complexe sportif Livraison prévisionnelle : 2e semestre 2027 Christophe MORTON immobilier vous invite à découvrir cet appartement, de type T3, d'une superficie de 70,85m² en loi Carrez, situé au 1er étage avec ascenseur d'une copropriété qui sera livrée au cours du 2e semestre 2027 Ce bien immobilier se compose d'un séjour-cuisine (31,85m²), d'une 2 chambres (10,67 et 12,81m²), d'une salle de bain (5,32m²), d'une entrée (3,69m²), et de WC indépendants Le bien comprend également un balcon (15,22m²), 2 places de parking en sous-sol (m²), et est équipé d'une peinture de finition blanche, de menuiseries PVC double vitrage, de volets roulants électriques, d'une porte palière serrure 3 coffres 5 pennes, A2P 1*, est prédisposé à recevoir la fibre, ? Situé dans un environnement rural, à proximité de la Place de l'Église et des commerces à 700m, du Collège à 800m, de l'école à 1 km, de la Gare de Lentilly à 7 min à vélo pour rejoindre Lyon en 20 min*, de l'autoroute A89 à 4 min pour rejoindre les axes A6 et A46, cet appartement répondra à la norme énergétique RT 2012, une équivalence RE2020 sera certifié par un bureau d'étude Que vous soyez à la recherche de votre résidence principale ou d'un investissement cet appartement peut répondre à vos attentes, du fait de sa situation géographique, de ses performances énergétiques, de sa garantie décennale,. ,. ,. Lentilly est une commune située à environ 15 kilomètres au nord-ouest de Lyon, dans les coteaux du Lyonnais. Elle fait partie de la Communauté de communes du Pays de l'Arbresle (CCPA). Lentilly est desservie par le réseau TER (tram-train) reliant Lyon-Saint Paul à L'Arbresle et Sain Bel. Elle est également proche de l'autoroute A89. Lentilly a su conserver son charme de village tout en se développant économiquement, avec une zone d'activités en essor et de nombreuses entreprises implantées sur son territoire. La commune propose une saison culturelle riche, des festivités régulières et de nombreuses possibilités de randonnées. En résumé, Lentilly est une commune résidentielle et dynamique du Rhône, prisée pour son cadre de vie entre ville et campagne, son accès facile à Lyon (train-tram, autoroute A89) et son riche passé historique. Lentilly est proche de Charbonnières-les-Bains Rhône (7kms), Dardilly Rhône (7kms), Chazay-d'Azergues Rhône (7kms), Lissieu Rhône (8kms), Grézieu-la-Varenne Rhône (9kms), Ecully Rhône (9kms), Limonest Rhône (10kms), Tassin-la-Demi-Lune Rhône (11kms), Lyon (19Kms) #appartementAVendre #T3 #ImmobilierLentilly #2Chambres #Immobilier #immobilierneuf #Investissement #Opportunité #a?vendre #Vente #ProjetDeVie #ProcheCommodités #ProjetImmobilier #vefa #ventesurplan #fraisdenotairereduits #AppartementAVendre #VenteAppartement #appartement2chambres N'attendez plus pour concrétiser votre projet immobilier ? ? Pour plus d'informations ou pour organiser une visite, contactez Christophe MORTON au 06 73 84 29 22 (appels / sms) - Agent immobilier certifié - Carte professionnelle n°CPI 6901 2024 000 000 033
- Type de bien : Appartement
- Surface : 70 m²
- Localisation : France - Auvergne-Rhône-Alpes - Rhône
- Ville : LENTILLY
- Code postal : 69210
- Annonce créée le 28/10/2025






