Vente Appartement 01240, Lent france 199 000 €
Descriptif du bien
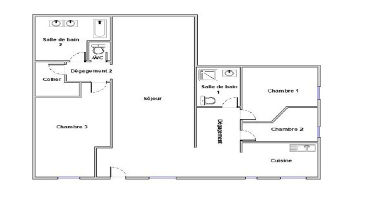
Ma Compagnie Immobillière vous propose sur la commune de LENT à 10mn environ de Bourg en Bresse un appartement spacieux en rez de jardin d'une superficie de 120.30m2.
Il se compose d'un vaste séjour de 41m2 environ, d'une cuisine ouverte, de trois chambres dont une de 19m2 environ, d'une grande salle de bain et une salle d'eau ainsi qu'un cellier.
Vous bénéficiez également en annexe d'une terrasse avec une cuisine d'été fermée ainsi que d'une cave attenante et d'un joli terrain de 514m2 avec vue sur étang et bois.
Possibilité de diviser l'appartement en 2 logements.
Quelques travaux de rafraichissement seront à prévoir.
Les honoraires de vente sont à la charge du vendeur
Les informations sur les risques auxquels se bien est exposé sont disponible sur le site Géorisques : www.georisques.gouv.fr
Pour tout renseignement ou visite, contactez Sophie Banos EI au 06.23.91.25.23. Annonce rédigée par un agent commercial inscrit au RSAC de Vienne no533 752 440. - Annonce rédigée et publiée par un Agent Mandataire -
- Type de bien : Appartement
- DPE : D - 151 à 230 kWh/².an
- GES : B - 6 à 10 kg eq CO2/².an
- Surface : 120 m²
- Localisation : France - Auvergne-Rhône-Alpes - Ain
- Ville : Lent
- Code postal : 01240
- Annonce créée le 12/11/2025





