Vente Appartement 62520, LE TOUQUET PARIS PLAGE france 1 395 000 €
Descriptif du bien
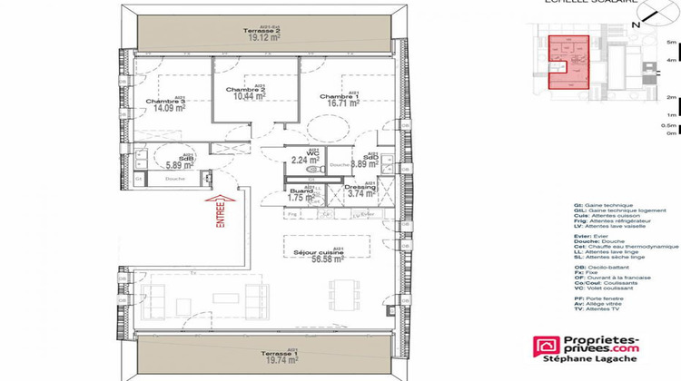
Le Touquet Paris plage 62520 Boulevard Thierry Sabine face à la pinède je vous propose dans une résidence de standing conforme à la RE2020 un T4 traversant de 115m² avec 2 terrasses de 19m². L'appartement comprend cuisine équipée ouverte sur séjour 56m², 3 chambres dont une suite parentale de 16m² avec sa salle de bain privative + une 2e SDB équipée. 1 garage et 1 cave complètent les prestations de qualité de cet appartement proposé au prix de 1.395.000 euros honoraires inclus charge vendeur. Disponible fin 2026. Descriptif complet sur demande. Pour visiter et vous accompagner dans votre projet, contactez Stéphane LAGACHE, au 0767462920 ou par courriel à s.lagache@proprietes-privees.com Cette présente annonce a été rédigée sous la responsabilité éditoriale de Stéphane LAGACHE agissant sous le statut d'agent commercial immatriculé au RSAC ARRAS 882 432 032 auprès de la SAS PROPRIETES PRIVEES, Réseau national immobilier, au capital de 40000 euros, 44 ALLÉE DES CINQ CONTINENTS - ZAC LE CHÊNE FERRÉ, 44120 VERTOU, RCS Nantes n° 487 624 777 00040, Carte professionnelle T et G n° CPI 4401 2016 000 010 388 CCI Nantes-Saint Nazaire. Garantie GALIAN - 89 rue de la Boétie, 75008 Paris Mandat réf : 540-C- Le professionnel garantit et sécurise votre projet immobilier. Copropriété de 8 lots - dont 8 lots habitation. (). Charges annuelles : 1 euros. Stéphane LAGACHE (EI) Agent Commercial - Numéro RSAC : ARRAS 882 432 032 - . Les informations sur les risques auxquels ce bien est exposé sont disponibles sur le site Géorisques : www. georisques. gouv. fr
- Type de bien : Appartement
- Surface : 115 m²
- Localisation : France - Hauts-de-France - Pas de Calais
- Ville : LE TOUQUET PARIS PLAGE
- Code postal : 62520
- Annonce mise à jour le 22/11/2025





