Vente Appartement 93340, Le Raincy france 345 000 €
Descriptif du bien
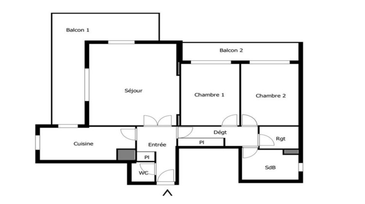
Au 36 allée Clémencet, découvrez ce bel appartement T3 de 75,70 m², situé au 2? étage sur 4 avec ascenseur, dans une résidence de 1982.
Rénové en 2023, il offre un séjour lumineux de 23 m² avec grandes ouvertures double vitrage et vue dégagée sur jardin. Deux chambres spacieuses, cuisine indépendante aménagée et équipée, salle de bains et WC séparé.
Deux balcons (25 m²), cave et stationnement intérieur complètent ce bien.
Commerces, écoles, RER et bus à moins de 5 minutes à pied.
Professions libérales possibles (sous conditions).
Contact : Benoît PAVAGEAU, agent commercial, au 06 87 45 36 70.
Dans une copropriété de 27 lots. Quote-part moyenne du budget prévisionnel 2 622 /an. Aucune procédure n'est en cours. Classe énergie C, Classe climat A Montant estimé des dépenses annuelles d'énergie pour un usage standard : entre 1090.00 et 1520.00 sur les années 2021, 2022 et 2023 (abonnements compris). Les informations sur les risques auxquels ce bien est exposé sont disponibles sur le site Géorisques : georisques.gouv.fr.
Votre conseiller PHILIPPE BROCHARD IMMOBILIER : Benoît PAVAGEAU
Agent commercial (Entreprise individuelle)
- Type de bien : Appartement
- DPE : C - 91 à 150 kWh/².an
- GES : A -< 6 kg eq CO2/².an
- Surface : 75 m²
- Localisation : France - ile-de-france - Seine Saint Denis
- Ville : Le Raincy
- Code postal : 93340
- Annonce créée le 20/02/2026





