Vente Appartement 44510, LE POULIGUEN france 315 000 €
Descriptif du bien
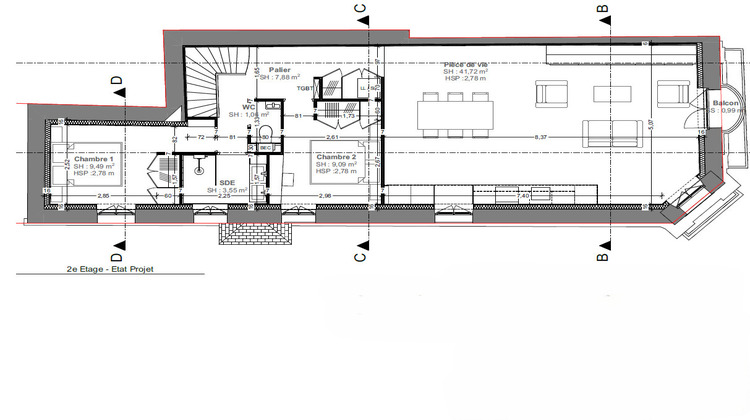
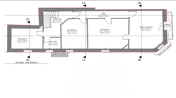
Port du Pouliguen. Au 2 -ème étage d'une petite copropriété composée de seulement deux lots, découvrez cet appartement de type 3 entièrement à rénover. Son emplacement privilégié et son fort potentiel en font un bien rare sur le secteur. Un place de stationnement extérieure sécurisée , donne un atout supplémentaire à ce bien. Ce logement offre une belle opportunité de repenser les espaces et de créer un intérieur sur mesure, en accord avec vos envies. Un projet de rénovation conçu par un architecte, accompagné d'une estimation précise des travaux, est disponible à l'agence. Une visite virtuelle 3D vous permettra également de vous projeter facilement. Un bien atypique dans un environnement d'exception à ne pas manquer. Les informations sur les risques auxquels ce bien est exposé sont disponibles sur le site Géorisques : www.georisques.gouv.fr (5.00 % honoraires TTC à la charge de l'acquéreur.) Copropriété de 9 lots (). Charges annuelles : 60 euros.
- Type de bien : Appartement
- DPE : G -> 450 kWh/².an
- GES : C - 11 à 20 kg eq CO2/².an
- Surface : 77 m²
- Localisation : France - pays-de-la-loire - Loire Atlantique
- Ville : LE POULIGUEN
- Code postal : 44510
- Annonce créée le 21/04/2026


