Vente Appartement 44510, LE POULIGUEN france 658 000 €
Descriptif du bien
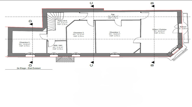
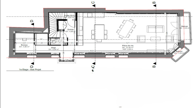
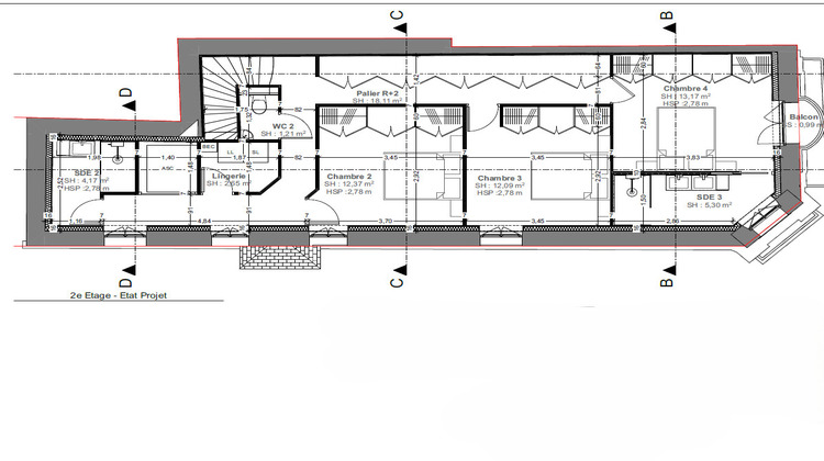
Situé dans un secteur privilégié sur le port du Pouliguen, grand appartement à rénover offre de belles perspectives de transformation. 154 m² à aménager, une base idéale pour concevoir un espace de vie unique, et personnalisé. Ce bien dispose également d'une place de stationnement et d'un garage couvert, des atouts rares sur le secteur. Un projet de rénovation réalisé par un architecte ainsi qu'un chiffrage détaillé des travaux sont disponibles à l'agence. Une visite virtuelle 3D est également à votre disposition pour vous projeter pleinement ( aménagement d'un ascenseur possible) Offrez-vous un bien singulier dans un cadre exceptionnel. Les informations sur les risques auxquels ce bien est exposé sont disponibles sur le site Géorisques : www.georisques.gouv.fr (4.44 % honoraires TTC à la charge de l'acquéreur.) Copropriété de 9 lots (). Charges annuelles : 60 euros.
- Type de bien : Appartement
- DPE : G -> 450 kWh/².an
- GES : C - 11 à 20 kg eq CO2/².an
- Surface : 154 m²
- Localisation : France - pays-de-la-loire - Loire Atlantique
- Ville : LE POULIGUEN
- Code postal : 44510
- Annonce créée le 21/04/2026




