Vente Appartement 38800, LE PONT-DE-CLAIX france 350 000 €
Descriptif du bien
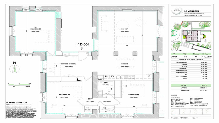
Cet appartement de plain pied , livré en mai 2025, s'inscrit dans une maison de maitre totalement rénovée de trois appartements située au coeur d'un ilot de verdure . Au sein d'une résidence fermée , il est situé à proximité de toutes les commodités et de l'arrêt du tramway . D'une superficie de 110 m² habitables , au rez de chaussée de ce manoir , il est traversant Est/Ouest et bénéficie ainsi d'une belle luminosité grâce à de grandes baies vitrées . Sous hauteur de plafond de 3m il nous offre une volumineuse pièce de vie avec un séjour-cuisine de 43 m² ouverte sur une confortable terrasse .de 43 m² et sur un jardin de 300 m² pour profiter des moments en plain air. . Un grand hall d'entrée , 3 chambres , une salle de bains et un WC complètent ce niveau . Enfin une cave en sous sol de la maison d'une superficie de 31 m² offrira un volume confortable de stockage . Les prestations sont de qualités ; chauffage par pompe à chaleur air-eau , DPE en B ou C , volets roulants électriques, parquets dans toutes les pièces sèches... Un garage fermé et ou une place de stationnement extérieure privative peuvent être vendus en sus ( respectivement 15000 et 5000 euros) Les frais de notaire sont réduits ( vente en VEFA) 2 autres 4 pièces sont à la vente dans cette merveilleuse bâtisse. La commune de Pont de Claix se métamorphose et ce logement est un lieu des plus attrayants pour y résider . Les informations sur les risques auxquels ce bien est exposé sont disponibles sur le site Géorisques pour les zones concernées : www.georisques.gouv.fr/ Contact ! Emile Garnier 06 03 99 32 30 Copropriété de 3 lots - dont 3 lots habitation. (Pas de procédure en cours). Charges annuelles : 2556 euros.
- Type de bien : Appartement
- Surface : 110 m²
- Localisation : France - Auvergne-Rhône-Alpes - Isère
- Ville : LE PONT-DE-CLAIX
- Code postal : 38800
- Annonce mise à jour le 24/02/2026







