Vente Appartement 92350, Le Plessis-Robinson france 326 500 €
Descriptif du bien
Situé dans le quartier dynamique de Novéos, à deux pas du centre-ville et du Parc des Sports, ce quartier bénéficie d'une situation idéale alliant tranquillité et accessibilité. Vous profiterez de commerces de proximité, d'équipements publics et de nombreux espaces verts, offrant un cadre de vie agréable au quotidien.
La résidence est parfaitement desservie : station T10 Novéos au pied de l'immeuble, proximité du tramway T6, connexion rapide à Paris via la ligne 13 et accès direct à l'A86. Tout est pensé pour faciliter vos déplacements, tout en profitant d'un environnement calme et apaisant.
Entre standing et modernité, ce quartier séduit par son ambiance conviviale et sa qualité de vie. C'est l'endroit idéal pour allier confort, nature et connectivité au quotidien.
Un emplacement de stationnement vient compléter le bien.
- Type de bien : Appartement
- GES : A -< 6 kg eq CO2/².an
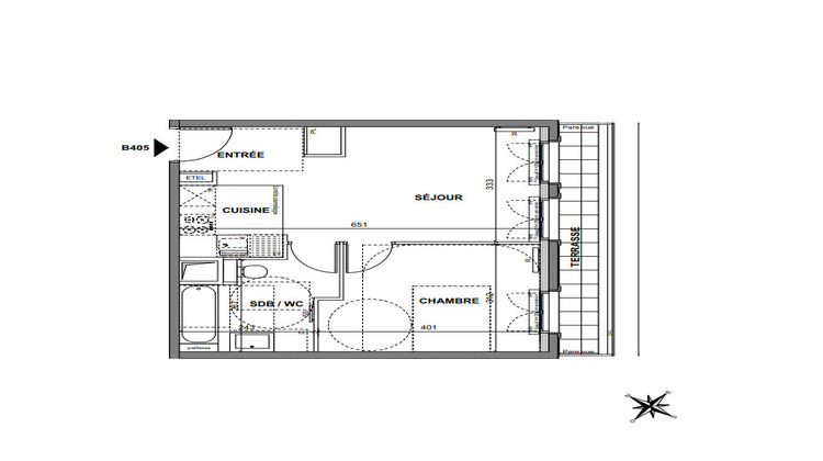
- Surface : 40 m²
- Localisation : France - ile-de-france - Hauts de Seine
- Ville : Le Plessis-Robinson
- Code postal : 92350
- Annonce créée le 17/12/2025





