Vente Appartement 92350, Le Plessis-Robinson france 313 500 €
Descriptif du bien
Située à l'entrée du quartier Joliot-Curie, la résidence Allée Robert Debré profite d'un cadre paisible et verdoyant, tout en restant à deux pas du centre-ville et de ses commodités essentielles. Marché réputé, commerces, restaurants, établissements scolaires et équipements sportifs se trouvent à proximité immédiate, offrant un quotidien pratique et agréable. Parfaitement connectée, l'adresse bénéficie de la présence du tramway T10 à seulement 500 mètres, des lignes de bus et du RER B, facilitant les déplacements vers Paris et les communes voisines.
Conçue dans un style architectural classique et harmonieux, la résidence s'intègre élégamment dans son environnement et propose un vaste coeur d'îlot paysager propice à la détente. Les appartements, tous prolongés par un espace extérieur et assortis d'une place de stationnement, offrent confort et modernité dans une résidence sécurisée et conforme aux exigences de la RE2020. Avec ses prestations soignées, ses cheminements piétons et l'arrivée prochaine d'une école Montessori, cette adresse réunit qualité de vie, sérénité et praticité au quotidien.
Un emplacement de stationnement vient compléter le bien.
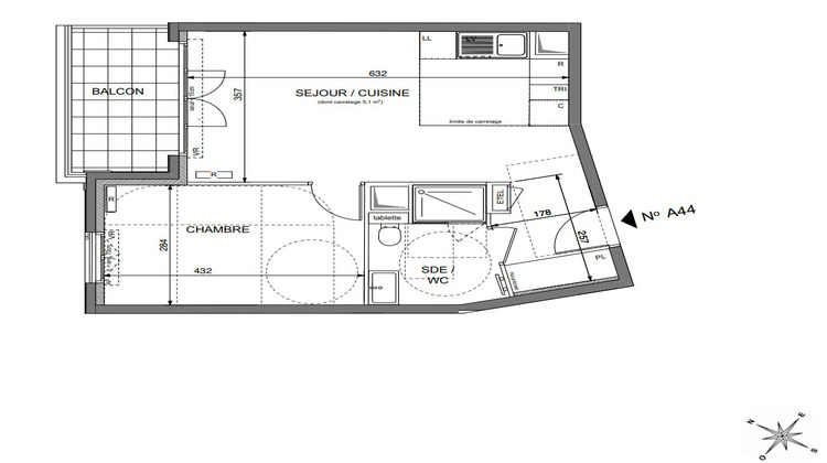
- Type de bien : Appartement
- GES : A -< 6 kg eq CO2/².an
- Surface : 43 m²
- Localisation : France - ile-de-france - Hauts de Seine
- Ville : Le Plessis-Robinson
- Code postal : 92350
- Annonce créée le 10/12/2025




