Vente Appartement 92350, Le Plessis-Robinson france 230 000 €
Descriptif du bien
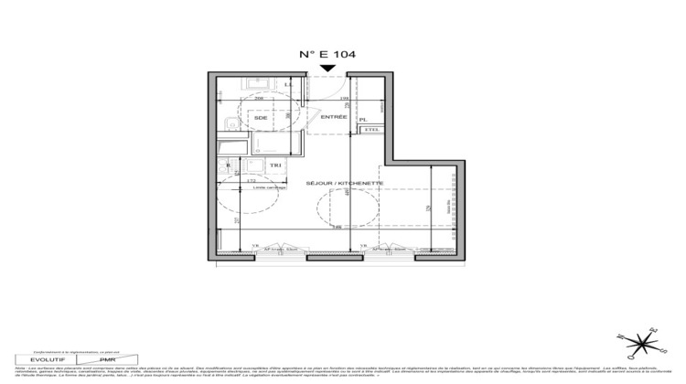
Dans un environnement calme et verdoyant à deux pas du centre-ville, ce studio de 32 m2 en rez-de-jardin séduit par son agencement optimisé et ses prestations de qualité. Dès l'entrée, vous découvrirez un espace fonctionnel composé d'un séjour lumineux avec cuisine ouverte, d'une salle d'eau moderne avec WC, et d'un agréable espace extérieur comprenant une terrasse prolongée par un jardin privatif, idéal pour profiter des beaux jours en toute intimité.
L'appartement bénéficie d'un cadre de vie privilégié : à seulement 15 minutes à pied du bois de Clamart, il permet de concilier confort urbain et nature au quotidien. Les commerces, écoles et transports sont facilement accessibles, avec le tramway T10 à 200 mètres, le T6 à 500 mètres, ainsi que plusieurs lignes de bus reliant rapidement les pôles majeurs de la région parisienne.
Parmi les atouts de ce bien : de belles hauteurs sous plafond, un parquet de qualité dans les pièces principales, des menuiseries en aluminium, un contrôle d'accès sécurisé avec vidéophone, ainsi qu'un aménagement intérieur soigné incluant meuble vasque, miroir, et pare-douche.
Une opportunité rare pour un premier achat, un investissement locatif ou un pied-à-terre dans un secteur dynamique et en plein essor.
- Type de bien : Appartement
- GES : A -< 6 kg eq CO2/².an
- Surface : 32 m²
- Localisation : France - ile-de-france - Hauts de Seine
- Ville : Le Plessis-Robinson
- Code postal : 92350
- Annonce créée le 18/06/2025





