Vente Appartement 94170, Le Perreux-sur-Marne france 449 000 €
Descriptif du bien
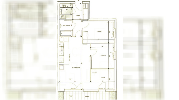
Au coeur du quartier prisé des Joncs Marins, cet appartement de 3 pièces de 71m2 se compose :
- d'un Séjour/cuisine ouvert de 27m2
- de 2 chambres spacieuses (12m2 et 10m2) avec des rangements
- d'une Alcôve de 8m2 : un espace à aménager selon vos envies : bureau, dressing, chambre d'appoint...
- d'une Salle de bains moderne (5m2) : équipée d'un meuble vasque, d'un miroir et d'un sèche-serviettes,
- d'un Dressing à l'entrée
- de WC séparés
- Terrasse de 15m2 et d'un jardin privatif de 71m2 : Double exposition
Situé à Le Perreux-sur-Marne, ce bien vous offre un équilibre parfait entre tranquillité et proximité des commodités :
À 3 min à pied des commerces de proximité - À 11 min à pied du groupe scolaire Les Joncs Marins - À 10 min à pied de la gare RER A et E (Val de Fontenay) - À 6 min à vélo des bords de Marne,
Proche du futur Grand Paris Express (lignes 1 et 15 à l'horizon 2030).
Le quartier des Joncs Marins est familial, verdoyant et dynamique, avec ses parcs, ses équipements sportifs et culturels, et son marché local. Une adresse où il fait bon vivre,
Faibles charges
Contactez-nous dès maintenant pour organiser une visite
Pas de frais d'agence Frais de notaire réduits Photo non-contractuelle
- Type de bien : Appartement
- DPE : B - 51 à 90 kWh/².an
- GES : B - 6 à 10 kg eq CO2/².an
- Surface : 71 m²
- Localisation : France - ile-de-france - Val de Marne
- Ville : Le Perreux-sur-Marne
- Code postal : 94170
- Annonce créée le 07/01/2026




