Vente Appartement 97290, Le Marin france 384 800 €
Descriptif du bien
Situé à Le Marin (97290), cet appartement bénéficie d'un emplacement idéal en plein coeur de la ville. Proche de toutes commodités, il offre un cadre de vie pratique et agréable avec ses deux places de parking et ses aménagements extérieurs tels qu'une terrasse et une cave. L'ascenseur, l'accès pour handicapés et la climatisation ajoutent un confort supplémentaire à cette propriété.
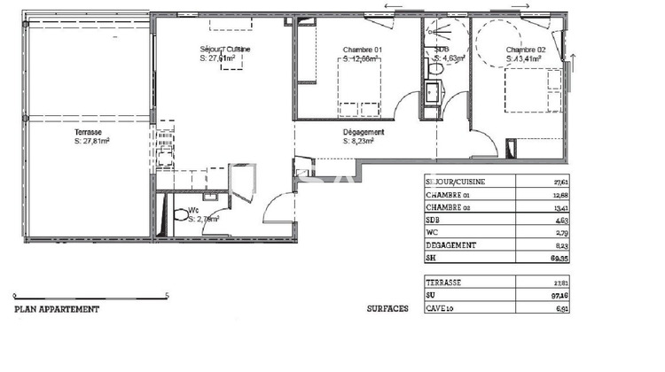
Avec une surface habitable de 69 m² et deux chambres, cet appartement au premier étage de la résidence sécurisée Les Terrasses du Marin est un véritable bijou. Construit en 2026, il se distingue par sa modernité et ses équipements haut de gamme tels que l'interphone, le digicode et la fibre optique. Son ambiance chaleureuse et lumineuse est renforcée par une terrasse spacieuse de 27.81 m² offrant une vue panoramique sur les environs.
L'intérieur de ce bien se caractérise par son agencement fluide et ses espaces optimisés. Le salon, la cuisine et les chambres offrent une superficie confortable pour une vie quotidienne harmonieuse. La luminosité est un atout majeur, renforcée par la présence de larges ouvertures. Les 3 pièces de cet appartement, dont 2 chambres, offrent des espaces accueillants, tandis que la cave de 6.91 m² permet un rangement pratique.
Les informations sur les risques auxquels ce bien est exposé sont disponibles sur le site Géorisques : www.georisques.gouv.fr
Prix de vente : 384 800 ¤
Honoraires charge vendeur
Contactez votre conseiller SAFTI : Fabienne GOUGEON, Tél. : 06 98 00 29 68, E-mail : fabienne.gougeon@safti.fr - EI - Agent commercial immatriculé au RSAC de FORT-DE-FRANCE sous le numéro 433946183.Informations LOI ALUR : Honoraires charge vendeur. (gedeon_26118_33103567)
- Type de bien : Appartement
- Surface : 69 m²
- Localisation : France - DOM/TOM - Martinique
- Ville : Le Marin
- Code postal : 97290
- Annonce créée le 23/04/2026


