Vente Appartement 38570, Le Cheylas france 156 000 €
Descriptif du bien
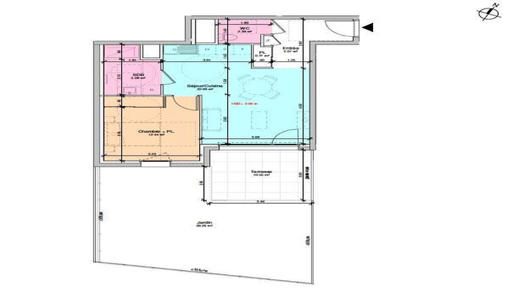
Iad France - Marie-Rose Gilles (06 98 85 33 80) vous propose : Appartement T2 neuf au Cheylas en rez-de-jardin : frais de notaire réduits ie qu'ils s'élèvent à environ 2,5% du prix de vente.
Appartement lumineux et ensoleillé grâce son exposition Sud.
Grand extérieur avec une terrasse de 10,55 m² environ et un jardin de 39,26 m² environ.
Prestations :
- Espace de vie de 22,93 m² environ
- 1 grande chambre avec placard de 12,44 m² environ
- 1 grande salle-de-d'eau de 5,09 m² environ
- 1 WC séparé
- Réglementation thermique 2020
- Chauffage et production d'eau chaude : individuel gaz
- Sols : carrelage 60x60cm dans les toutes les pièces sauf les chambres, en revêtement stratifié
- Murs : Peinture
Date de livraison prévisionnelle : 3e trimestre 2028
Proximité des services, commerces, écoles, transports.
Autres T2 disponibles : entre 135 000¤ et 158 000¤, entre 40,57 m² environ et 49,19 m² environ.
Garage en sus : à partir de 15000¤
Parking en sus : 6000¤
Local vélo privatif en sus : 3000¤ (environ 4 m² environ)
Le Cheylas, commune résidentielle à :
À moins de 5min : Goncelin (38570)
A moins de 10min : Tencin (38570), Le Touvet (38660)
A moins de 15min : Pontcharra (38530), Allevard (38580), Theys (38570), La Terrasse (38660)
A moins de 20min : Crolles (38920), Froges (38190), Brignoud Villard-Bonnot (38190), Chapareillan (38530), Porte de Savoie (73800)
A moins de 30min : Chambéry (73000), Grenoble (38000), Challes-les-Eaux (73190)
Contactez moi pour toute information complémentaire
Honoraires d'agence à la charge du vendeur. Bien non soumis au DPE. Les informations sur les risques auxquels ce bien est exposé sont disponibles sur le site Géorisques : www.georisques.gouv.fr. La présente annonce immobilière a été rédigée sous la responsabilité éditoriale de Mlle Marie-Rose Gilles EI (ID 83761), mandataire indépendant en immobilier (sans détention de fonds), agent commercial de la SAS I@D France immatriculé au RSAC de GRENOBLE sous le numéro 478110612, titulaire de la carte de démarchage immobilier pour le compte de la société I@D France SAS.
Retrouvez tous nos biens sur notre site internet. www.iadfrance.fr.Informations LOI ALUR : Honoraires charge vendeur. (gedeon_6727_32714427)
- Type de bien : Appartement
- Surface : 47 m²
- Localisation : France - Auvergne-Rhône-Alpes - Isère
- Ville : Le Cheylas
- Code postal : 38570
- Annonce créée le 16/04/2026

