Vente Appartement 78150, LE CHESNAY france 219 000 €
Descriptif du bien
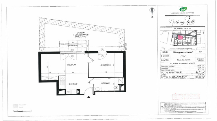
Votre agence l'Adresse Palaiseau vous propose à la vente cet appartement 2 pièces d'une surface de 44,51 m² offrant des prestations modernes et un agencement fonctionnel. Situé en rez-de-chaussée au sein d'une copropriété récente et bien entretenue de 2019, il se compose d'une entrée, d'une cuisine ouverte sur un séjour lumineux donnant accès à une terrasse privative d'environ 37 m², d'une chambre et d'une salle d'eau avec wc. Vous bénéficierez également de deux places de stationnement en sous-sol, un atout rare pour ce type de bien. L'appartement est vendu loué, générant un revenu locatif mensuel de 997,64 euros hors charges, idéal pour un investissement sécurisé et pérenne. Copropriété de 70 lots - dont 35 lots habitation. (Pas de procédure en cours). Charges annuelles : 1035 euros.
- Type de bien : Appartement
- DPE : B - 51 à 90 kWh/².an
- GES : C - 11 à 20 kg eq CO2/².an
- Surface : 44 m²
- Localisation : France - ile-de-france - Yvelines
- Ville : LE CHESNAY
- Code postal : 78150
- Annonce créée le 11/11/2025









