Vente Appartement 06110, LE CANNET france 369 000 €
Descriptif du bien
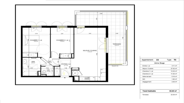
A quelques pas des commerces et des bus , dans une petite résidence qui va allier matériaux de qualité et lignes régionales, un appartement de 66m2 , avec un grand espace de vie de presque 28 m2 (séjour +cuisine ouverte ) donnant sur la terrasse de 22 M2 sera votre Résidence principale. Et 2 chambres avec placards incorporés , une vraie SDBAIN , un WC séparé , un placard dans l'entrée, le rendront pratique à vivre. une profonde terrasse (2,00mètres ) et d'angle va rendre cet appartement urbain agréable à vivre car sans vis à vis direct ! Bâtiment RT2012 ( isolation thermique et phonique ) ,avec piscine ensoleillée et livrable en mars 2027. Possibilité d'un parking en sous sol. ( valeur 29 000 euros). NB : visuels non contractuel. et prix négociés.
- Type de bien : Appartement
- Surface : 65 m²
- Localisation : France - provence-alpes-cote-d-azur - Alpes Maritimes
- Ville : LE CANNET
- Code postal : 06110
- Annonce créée le 10/03/2026



