Vente Appartement 06110, LE CANNET france 244 000 €
1 / 4
Descriptif du bien
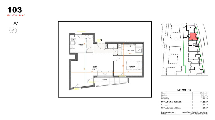
Dans un immeuble urbain de rocheville , de 2 étages seulement , , ce grand appartement 2 pièces de 51 M2 tout neuf , avec une vrai cuisine fermée avec fenêtre ! le séjour a 2 Portes-fenêtres donnant sur le balcon . l'appartement est traversant SUD/ nord les normes thermiques et phoniques sont performantes et donc économiques .. un parking en sous sol est a vendre à 19 900 euros donc a saisir ! pour compléter ce logement. au bon rapport prix surface ..5100 euros pour du neuf , accessible immédiatement. Rappel : les frais de notaires sont réduits à 3 % ( au lieu de 8 % dans l'ancien) donc faibles . visuels non contractuels
- Type de bien : Appartement
- Surface : 51 m²
- Localisation : France - provence-alpes-cote-d-azur - Alpes Maritimes
- Ville : LE CANNET
- Code postal : 06110
- Annonce créée le 27/01/2026



