Vente Appartement 66200, Latour-Bas-Elne france 485 000 €
Descriptif du bien
Iad France - Rémi Perez vous propose : Nouveauté sur Latour-Bas-Elne !
BIEN LIRE L'ANNONCE,
L'appartement sera livré premier trimestre 2027, bénéficiant des dernières normes de construction RT 2020, avec garanties décennales et dommage ouvrage ! Frais de notaire réduits.
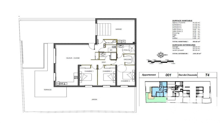
Magnifique appartement T4 (Lot 1) de 98,60 m² habitables en rez-de-chaussée, avec un magnifique jardin de 85 m², une terrasse de 25,10 m², un garage de 24,20 m² ainsi que deux places de stationnement privatives. Il se composera d'une lumineuse pièce de vie de 42 m², trois belles chambres dont une suite parentale avec dressing et salle d'eau privative totalisant 23,15 m², une seconde salle d'eau indépendante ainsi qu'un cellier attenant au garage.
Idéalement située, à proximité de l'ensemble des commodités utiles au quotidien.
6 lots d'appartements à vendre avec extérieurs - garages et stationnements privatifs, me contacter pour plus d'informations.
Honoraires d'agence à la charge du vendeur.
Bien non soumis au DPE. Les informations sur les risques auxquels ce bien est exposé, y compris l'obligation légale de débroussaillement, sont disponibles sur le site Géorisques : http://www.georisques.gouv.fr.
La présente annonce immobilière a été rédigée sous la responsabilité éditoriale de M Rémi Perez mandataire indépendant en immobilier (sans détention de fonds), agent commercial de la SAS I@D France immatriculé au RSAC de PERPIGNAN sous le numéro 905014379, titulaire de la carte de démarchage immobilier pour le compte de la société I@D France SAS.
Informations LOI ALUR :
Honoraires charge vendeur. (gedeon_6727_32501039)
- Type de bien : Appartement
- Surface : 99 m²
- Localisation : France - Occitanie - Pyrénées-Orientales
- Ville : Latour-Bas-Elne
- Code postal : 66200
- Annonce créée le 29/01/2026





