Vente Appartement 22300, Lannion france 494 000 €
Descriptif du bien
L'agence 'MON BIEN A LA MER', spécialiste de l'immobilier neuf sur les côtes Bretonnes, vous présente :
Très rare : Nouvelle réalisation en plein centre de LANNION :
à pied de tous commerces, 7 min à pied de la Gare.
Nouveau : Résidence de standing en construction pour fin 2027, normes RE2020, Ascenseur, Frais de notaire réduits.
Au pied de la résidence : jardin collectif pour les résidents clos de mur 1000m2.
Un havre de paix en plein centre ville! A 10 min en voiture des merveilleuses plages de la côte de Granit Rose.
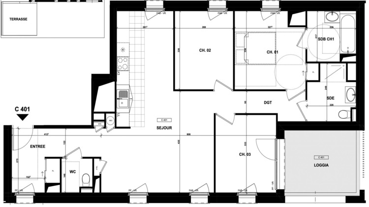
Ce T4 est situé au 4è et dernier étage, et offre séjour expo sud ouest traversant, entrée, 3 chambres, salle d'eau, salle de bains, 2 wcs, cave et deux parkings.
Une loggia de 9,65m2 et une incroyable terrasse de 50m2 offrant une vue panoramique sur LANNION.
Possibilité modification de plans intérieurs.
Nous consulter.
Honoraires à la charge du vendeur. Non soumis au DPE. Les informations sur les risques auxquels ce bien est exposé sont disponibles sur le site Géorisques : georisques.gouv.fr.
Votre conseiller MON BIEN A LA MER : Gérant - .fr MON BIEN A LA MER
Carte T CPI 2201 2018 000 025 040
RCP ACM IARD B1 7025278
- Type de bien : Appartement
- Surface : 83 m²
- Localisation : France - Bretagne - Côtes d'Armor
- Ville : Lannion
- Code postal : 22300
- Annonce créée le 20/03/2026





