Vente Appartement 65300, Lannemezan france 59 900 €
Descriptif du bien
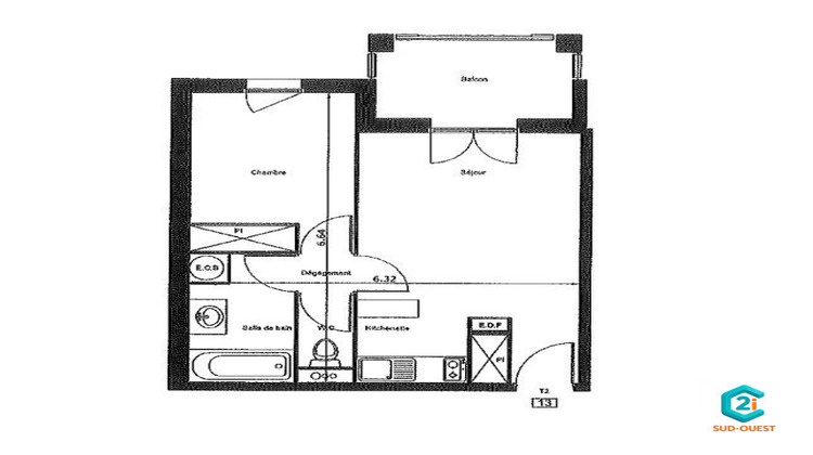
LANNEMEZAN APPARTEMENT T2 DE 37 M2 AVEC TERRASSE ET PARKING LIBRE DE TOUTE OCCUPATION
Situé au coeur de Lannemezan, découvrez cet appartement T2 fonctionnel de 37 m2 offrant une belle luminosité. Ce bien se compose d'une pièce de vie agréable avec cuisine ouverte donnant sur une terrasse privative, d'une chambre, d'une salle d'eau et d'un WC indépendant.
L'appartement est intégré au sein d'une copropriété calme et bien entretenue, offrant un cadre de vie sécurisé et paisible. L'agencement est optimal sans aucune perte de place et le bien dispose d'une place de parking privative facilitant votre quotidien.
Emplacement stratégique à proximité immédiate des commerces, des services et des accès transports (gare et autoroute A64). Idéal pour un premier achat ou un investissement locatif serein dans un secteur recherché pour sa demande locative.
Pour toute information complémentaire sur la copropriété ou pour organiser une visite, contactez-moi directement.
Honoraires à la charge du vendeur. Dans une copropriété de 106 lots. Aucune procédure n'est en cours. DPE en cours. Les informations sur les risques auxquels ce bien est exposé sont disponibles sur le site Géorisques : georisques.gouv.fr.
- Type de bien : Appartement
- Surface : 37 m²
- Localisation : France - Occitanie - Hautes-Pyrénées
- Ville : Lannemezan
- Code postal : 65300
- Annonce créée le 27/03/2026

